Bydgoszcz, Czyżkówko

Mieszkanie na sprzedaż

Opis nieruchomości

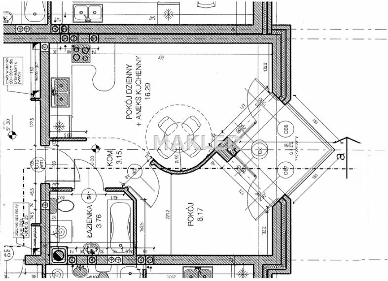
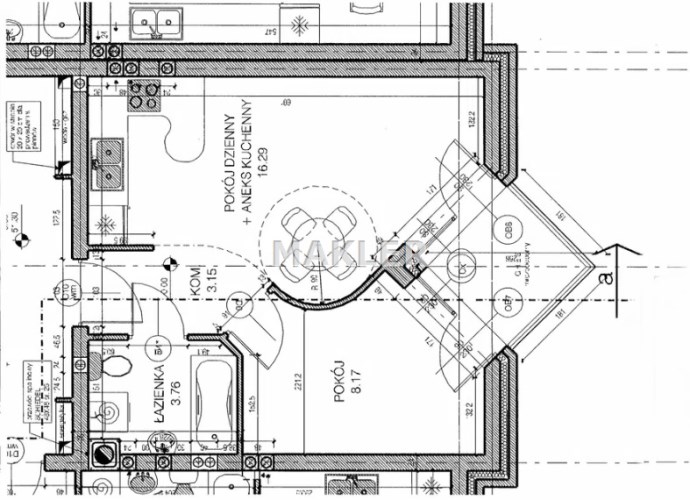
Makler Nieruchomości poleca Państwu do sprzedaży funkcjonalne i zadbane mieszkanie o powierzchni 31,37 m², położone na podwyższonym parterze w trzypiętrowym budynku z 2006 roku. Nieruchomość znajduje się na zamkniętym, kameralnym osiedlu w spokojnej części Czyżkówka w Bydgoszczy. Budynek wyposażony jest w windę i zarządzany przez wspólnotę mieszkaniową. Forma własności – pełna własność.

Układ pomieszczeń
Mieszkanie składa się z salonu z aneksem kuchennym oraz przedpokoju o łącznej powierzchni około 20 m², sypialni o powierzchni około 8 m² oraz łazienki o powierzchni około 4 m².
Dużym atutem nieruchomości jest balkon z wyjściem zarówno z salonu, jak i z sypialni – rozwiązanie rzadko spotykane przy tej wielkości mieszkania.
Do lokalu przynależy komórka lokatorska o powierzchni 2,43 m².


Mieszkanie jest w bardzo dobrym stanie technicznym i wizualnym, gotowe do zamieszkania. Około cztery lata temu przeprowadzono remont obejmujący wymianę podłóg, malowanie ścian i sufitów oraz modernizację łazienki, w której wymieniono kabinę prysznicową, WC oraz pralkę.
Ogrzewanie gazowe zapewnia piec dwufunkcyjny zlokalizowany w łazience. Okna PCV. Lokal sprzedawany z podstawowym wyposażeniem AGD.

Koszty utrzymania
Czynsz administracyjny wynosi około 352 zł miesięcznie.

Lokalizacja
Osiedle zamknięte, z placem zabaw przeznaczonym wyłącznie dla mieszkańców. Spokojna, zielona okolica z dobrą komunikacją z centrum miasta. W pobliżu znajdują się sklepy, punkty usługowe, tereny spacerowe oraz przystanki komunikacji miejskiej. Dodatkowym atutem jest bliskość kompleksu biurowego Atos.

Oferta idealna jako pierwsze mieszkanie dla singla lub pary, a także jako gotowa inwestycja pod wynajem.

Nota prawna

Opis oferty zawarty na stronie internetowej sporządzany jest na podstawie oględzin nieruchomości oraz informacji uzyskanych od właściciela, może podlegać aktualizacji i nie stanowi oferty określonej w art. 66 i następnych K.C.

Szczegóły oferty

Symbol oferty MAK-MS-29140
Powierzchnia 31,37 m²
Powierzchnia użytkowa 31,37 m²
Liczba pokoi 2
Piętro parter
Rodzaj budynku blok
Technologia budowlana silikat
Liczba pięter w budynku 3
Stan prawny Własność
Balkon jest
Rok budowy 2006
Ogrzewanie gazowe
Winda tak

Kalkulator kredytowy

PLN
%
Wysokość raty

Kalkulator kosztów

PLN
PLN
PLN
PLN
PLN
PLN
%
PLN
Podatek od czynności cywilno-prawnych
Taksa notarialna (opłata notarialna)
VAT od taksy notarialnej (opłaty notarialnej)
Wniosek do WKW
VAT od wniosku do WKW
Prowizja agencji nieruchomości
VAT od prowizji agencji nieruchomości
Wypisy aktu notarialnego - około
RAZEM (cena + opłaty)

Podobne oferty

bez prowizji
mieszkanie na sprzedaż - Bydgoszcz, Centrum

mieszkanie na sprzedaż

Bydgoszcz, Centrum
2 pokoje 38,13 m2 8 649,36 zł/m2
bez prowizji
mieszkanie na sprzedaż - Bydgoszcz, Centrum

mieszkanie na sprzedaż

Bydgoszcz, Centrum
2 pokoje 30,26 m2 9 249,83 zł/m2
bez prowizji
mieszkanie na sprzedaż - Bydgoszcz, Centrum

mieszkanie na sprzedaż

Bydgoszcz, Centrum
2 pokoje 38,80 m2 8 698,45 zł/m2
bez prowizji
mieszkanie na sprzedaż - Bydgoszcz, Centrum

mieszkanie na sprzedaż

Bydgoszcz, Centrum
2 pokoje 33,57 m2 10 262,14 zł/m2

Napisz do nas

Proszę wypełnić to pole
Proszę wypełnić to pole
Proszę wypełnić to pole
Proszę wypełnić to pole
Trwa wysyłanie...

Ta strona wykorzystuje pliki cookies w celach statystycznych oraz w celu dostosowania naszych serwisów do indywidualnych potrzeb klientów. Zmiany ustawień dotyczących plików cookie można dokonać w dowolnej chwili modyfikując ustawienia przeglądarki. Korzystanie z tej strony bez zmian ustawień dotyczących cookies oznacza, że będą one zapisane w pamięci urządzenia.

rozumiem