Bydgoszcz, Śródmieście

Mieszkanie na sprzedaż

Opis nieruchomości

Biuro Makler Nieruchomości ma przyjemność zaprezentować przestronne mieszkanie z balkonem, położone w jednej z najbardziej cenionych lokalizacji Bydgoszczy — w Dzielnicy Muzycznej.

Nieruchomość znajduje się na 1. piętrze klimatycznej kamienicy z początku XX wieku. Mieszkanie ma powierzchnię 113,77 m² i oferuje duże możliwości aranżacyjne — zarówno dla osób szukających wyjątkowego miejsca do zamieszkania, jak i dla inwestorów.

To propozycja dla osób, które cenią przestrzeń, wysokie sufity, charakter przedwojennej architektury oraz lokalizację z wyjątkowym klimatem. Mieszkanie wymaga częściowego remontu, dzięki czemu przyszły właściciel może urządzić wnętrze według własnych potrzeb.

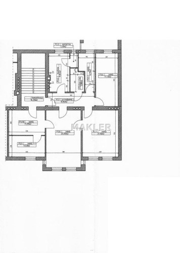
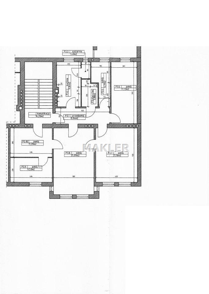
Układ mieszkania

W skład nieruchomości wchodzą:

  • przestronny salon,
  • cztery ustawne pokoje,
  • mniejszy pokój idealny na gabinet lub garderobę,
  • oddzielna kuchnia,
  • spiżarnia,
  • łazienka z WC,
  • przedpokój,
  • balkon / loggia.

Układ pomieszczeń daje wiele możliwości — mieszkanie może pełnić funkcję komfortowego lokalu rodzinnego, eleganckiego apartamentu w kamienicy lub nieruchomości inwestycyjnej pod wynajem.

Standard i stan techniczny

Mieszkanie jest do częściowego remontu, co stanowi doskonałą bazę do stworzenia wnętrza z charakterem.

Najważniejsze informacje:

  • rok budowy kamienicy: ok. 1915,
  • piętro: 1 / 4,
  • ogrzewanie: piece kaflowe z wkładami elektrycznymi,
  • możliwość wykonania ogrzewania gazowego,
  • okna PCV,
  • dostęp do światłowodu i mediów,
  • pełna własność z księgą wieczystą.

Budynek

Kamienica wyróżnia się elegancką architekturą i historycznym charakterem. Budynek został zaprojektowany przez znanego bydgoskiego architekta Rudolfa Kerna.

Kamienica przeszła istotne prace remontowe:

  • odnowiona elewacja,
  • wymieniony dach,
  • wyremontowane klatki schodowe,
  • budynek zarządzany przez wspólnotę mieszkaniową,
  • brak nadzoru konserwatorskiego, co daje większą swobodę przy remoncie i aranżacji.

Dodatkowe atuty

  • balkon / loggia o powierzchni 6,86 m²,
  • piwnica o powierzchni 2,55 m²,
  • wysokie sufity,
  • duże i ustawne pomieszczenia,
  • narożny układ mieszkania,
  • bardzo dobre doświetlenie,
  • możliwość zmiany układu pomieszczeń,
  • duży potencjał inwestycyjny.

Lokalizacja

Dzielnica Muzyczna to jedna z najbardziej klimatycznych części Bydgoszczy. W najbliższej okolicy znajdują się:

  • Akademia Muzyczna,
  • Filharmonia Pomorska,
  • Teatr Polski,
  • Uniwersytet Kazimierza Wielkiego,
  • Park Kochanowskiego,
  • ogród botaniczny,
  • Galeria Focus,
  • sklepy, piekarnie, restauracje i punkty usługowe,
  • przystanki komunikacji miejskiej.

To lokalizacja idealna zarówno do codziennego życia, jak i pod inwestycję.

Najważniejsze atuty nieruchomości

  • 113,77 m² powierzchni,
  • 5 pokoi z dużym potencjałem aranżacyjnym,
  • 1. piętro w klimatycznej kamienicy,
  • balkon / loggia,
  • prestiżowa lokalizacja — Dzielnica Muzyczna,
  • wysokie sufity i duże, ustawne pomieszczenia,
  • narożny układ i bardzo dobre doświetlenie,
  • możliwość zmiany układu pomieszczeń,
  • pełna własność z księgą wieczystą,
  • idealne do zamieszkania lub jako inwestycja.

Informacje podstawowe

Powierzchnia: 113,77 m²
Liczba pokoi: 5
Piętro: 1 / 4
Czynsz: ok. 365 zł
Forma własności: pełna własność
Cena: 799 000 zł
Cena za m²: ok. 7 023 zł/m²


To mieszkanie łączy przestrzeń, klimat historycznej kamienicy i prestiżową lokalizację. Będzie doskonałym wyborem dla osób poszukujących dużego mieszkania w centrum miasta lub inwestorów szukających nieruchomości o dużym potencjale wzrostu wartości.

Zapraszam serdecznie do kontaktu oraz na prezentację.


Niniejsza oferta ma charakter informacyjny i nie stanowi oferty handlowej w rozumieniu art. 66 §1 Kodeksu Cywilnego. Dokładamy wszelkich starań, aby informacje zawarte w ogłoszeniu były aktualne i rzetelne.

Nota prawna

Opis oferty zawarty na stronie internetowej sporządzany jest na podstawie oględzin nieruchomości oraz informacji uzyskanych od właściciela, może podlegać aktualizacji i nie stanowi oferty określonej w art. 66 i następnych K.C.

Szczegóły oferty

Symbol oferty MAK-MS-29985
Powierzchnia 123,00 m²
Powierzchnia użytkowa 113,00 m²
Powierzchnia balkonów/tarasów 6,86 m²
Liczba pokoi 5
Piętro 1
Rodzaj budynku kamienica
Technologia budowlana cegła
Liczba pięter w budynku 3
Piwnica 2,55 m²
Stan prawny Własność
Mies. czynsz admin. 365 PLN
Instalacje wymienione
Balkon jest
Rok budowy 1912
Ogrzewanie elektryczne

Lokalizacja

Kalkulator kredytowy

PLN
%
Wysokość raty

Kalkulator kosztów

PLN
PLN
PLN
PLN
PLN
PLN
%
PLN
Podatek od czynności cywilno-prawnych
Taksa notarialna (opłata notarialna)
VAT od taksy notarialnej (opłaty notarialnej)
Wniosek do WKW
VAT od wniosku do WKW
Prowizja agencji nieruchomości
VAT od prowizji agencji nieruchomości
Wypisy aktu notarialnego - około
RAZEM (cena + opłaty)

Podobne oferty

bez prowizji
mieszkanie na sprzedaż - Bydgoszcz, Bielawy

mieszkanie na sprzedaż

Bydgoszcz, Bielawy
2 pokoje 41,80 m2 14 856,46 zł/m2
mieszkanie na sprzedaż - Bydgoszcz, Wzgórze Wolności

mieszkanie na sprzedaż

Bydgoszcz, Wzgórze Wolności
4 pokoje 74,33 m2 9 511,64 zł/m2
oferta specjalna
mieszkanie na sprzedaż - Bydgoszcz, Centrum

mieszkanie na sprzedaż

Bydgoszcz, Centrum
3 pokoje 66,25 m2 9 800,00 zł/m2
bez prowizji
mieszkanie na sprzedaż - Bydgoszcz, Bielawy

mieszkanie na sprzedaż

Bydgoszcz, Bielawy
2 pokoje 43,70 m2 14 073,23 zł/m2

Napisz do nas

Proszę wypełnić to pole
Proszę wypełnić to pole
Proszę wypełnić to pole
Proszę wypełnić to pole
Trwa wysyłanie...

Ta strona wykorzystuje pliki cookies w celach statystycznych oraz w celu dostosowania naszych serwisów do indywidualnych potrzeb klientów. Zmiany ustawień dotyczących plików cookie można dokonać w dowolnej chwili modyfikując ustawienia przeglądarki. Korzystanie z tej strony bez zmian ustawień dotyczących cookies oznacza, że będą one zapisane w pamięci urządzenia.

rozumiem