Bydgoszcz, Śródmieście

Mieszkanie na sprzedaż

Opis nieruchomości

Biuro Makler Nieruchomości serdecznie zaprasza do zapoznania się z wyjątkową ofertą przestronnego, funkcjonalnego mieszkania 5-pokojowego z balkonem, położonego w jednej z najbardziej prestiżowych lokalizacji Bydgoszczy – Dzielnicy Muzycznej.

Nieruchomość o powierzchni 113,77 m² znajduje się na 1. piętrze, w historycznej kamienicy z początku XX wieku i wyróżnia się niezwykłym klimatem oraz dużym potencjałem aranżacyjnym.

Mieszkanie jest do częściowego remontu, co daje przyszłemu właścicielowi możliwość stworzenia wnętrza idealnie dopasowanego do własnych potrzeb – zarówno do zamieszkania, jak i pod inwestycję.

Duże pomieszczenia, wysokie sufity oraz dwustronna ekspozycja zapewniają bardzo dobre doświetlenie i wyjątkowe poczucie przestrzeni, charakterystyczne dla przedwojennej architektury.


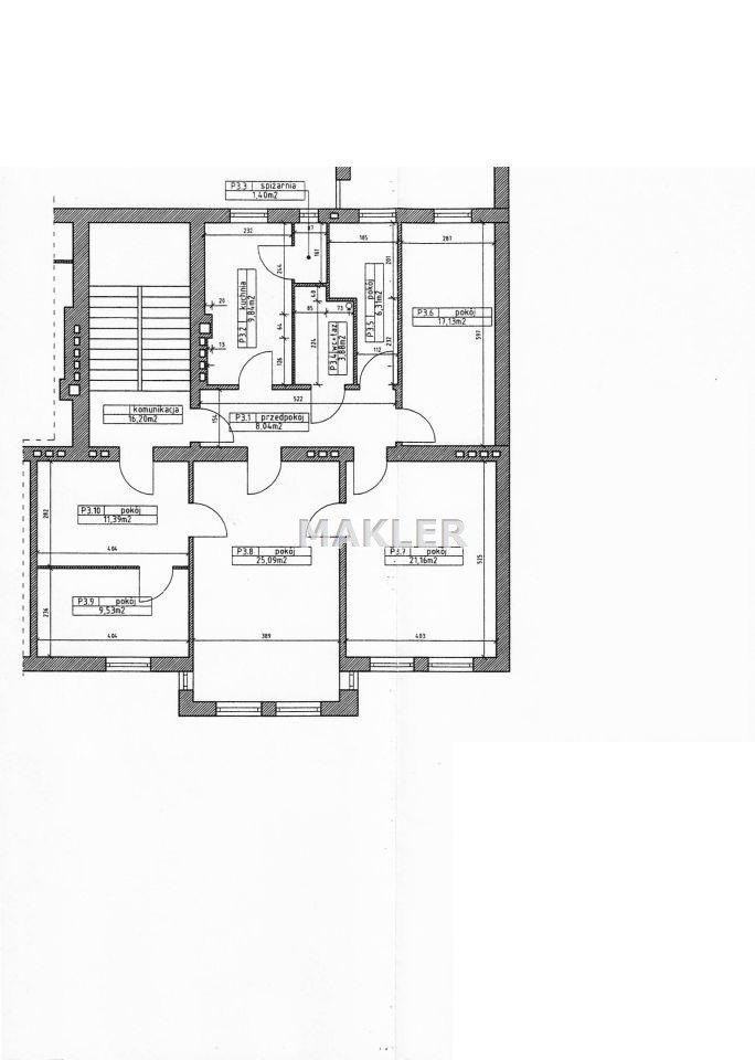
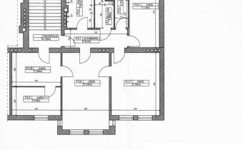
UKŁAD POMIESZCZEŃ:

  • przestronny salon
  • cztery niezależne pokoje
  • dodatkowy mniejszy pokój (gabinet / garderoba)
  • oddzielna kuchnia
  • spiżarnia
  • łazienka z WC
  • funkcjonalny przedpokój
  • balkon (loggia)

Układ mieszkania daje szerokie możliwości aranżacyjne – zarówno pod komfortowe mieszkanie rodzinne, jak i podział na kilka lokali.


STANDARD:

Mieszkanie do częściowego remontu – z dużym potencjałem inwestycyjnym.

  • rok budowy: 1915
  • piętro: 1 / 4
  • winda: brak
  • ogrzewanie: piece kaflowe z wkładami elektrycznymi (możliwość gazu)
  • okna PCV
  • dostęp do światłowodu i mediów
  • pełna własność z księgą wieczystą

BUDYNEK I UDOGODNIENIA:

Kamienica o wyjątkowym charakterze architektonicznym, zaprojektowana przez znanego bydgoskiego architekta Rudolfa Kerna.

  • budynek po generalnym remoncie
  • nowa elewacja
  • wymieniony dach
  • wyremontowane klatki schodowe
  • zarządzany przez wspólnotę mieszkaniową
  • brak nadzoru konserwatorskiego (większa swoboda aranżacji)

DODATKOWE ATUTY:

  • balkon (loggia) o pow. 6,86 m²
  • piwnica o pow. 2,55 m²
  • duże, ustawne pomieszczenia
  • wysokie sufity
  • mieszkanie narożne – bardzo dobrze doświetlone
  • możliwość zmiany układu pomieszczeń

LOKALIZACJA:

Jedna z najbardziej prestiżowych i klimatycznych części miasta:

  • Akademia Muzyczna
  • Filharmonia Pomorska
  • Teatr Polski
  • Uniwersytet Kazimierza Wielkiego
  • Park Kochanowskiego / ogród botaniczny
  • sklepy, piekarnie, restauracje
  • Galeria Focus
  • komunikacja miejska

Lokalizacja idealna zarówno do życia, jak i pod inwestycję.


NAJWAŻNIEJSZE ATUTY:

  • 113,77 m² przestrzeni
  • 5 niezależnych pokoi
  • prestiżowa lokalizacja – Dzielnica Muzyczna
  • 1. piętro
  • klimatyczna kamienica
  • duży potencjał aranżacyjny
  • idealne pod inwestycję
  • pełna własność + KW
  • unikalna nieruchomość – takich ofert jest bardzo mało

INFORMACJE DODATKOWE:

  • powierzchnia: 113,77 m²
  • liczba pokoi: 5
  • piętro: 1/4
  • czynsz: ok. 365zł
  • forma własności: pełna własność
  • cena: 799 000 zł
  • cena za m²: 7 023 zł/m²

PODSUMOWANIE:

To idealna propozycja dla osób poszukujących dużej przestrzeni, prestiżowej lokalizacji oraz klimatu historycznej kamienicy, a także dla inwestorów szukających nieruchomości o wysokim potencjale wzrostu wartości.


Zapraszam serdecznie po więcej informacji oraz na prezentację nieruchomości.


„Niniejsza oferta ma charakter informacyjny i nie stanowi oferty handlowej w rozumieniu art. 66 §1 Kodeksu Cywilnego. Dokładamy wszelkich starań, aby informacje zawarte w ogłoszeniu były aktualne i rzetelne.”

Nota prawna

Opis oferty zawarty na stronie internetowej sporządzany jest na podstawie oględzin nieruchomości oraz informacji uzyskanych od właściciela, może podlegać aktualizacji i nie stanowi oferty określonej w art. 66 i następnych K.C.

Szczegóły oferty

Symbol oferty MAK-MS-29475
Powierzchnia 123,00 m²
Powierzchnia użytkowa 113,00 m²
Powierzchnia balkonów/tarasów 6,86 m²
Liczba pokoi 5
Piętro 1
Rodzaj budynku kamienica
Technologia budowlana cegła
Liczba pięter w budynku 3
Piwnica 2,55 m²
Stan prawny Własność
Mies. czynsz admin. 365 PLN
Instalacje wymienione
Balkon jest
Rok budowy 1912
Ogrzewanie elektryczne

Lokalizacja

Kalkulator kredytowy

PLN
%
Wysokość raty

Kalkulator kosztów

PLN
PLN
PLN
PLN
PLN
PLN
%
PLN
Podatek od czynności cywilno-prawnych
Taksa notarialna (opłata notarialna)
VAT od taksy notarialnej (opłaty notarialnej)
Wniosek do WKW
VAT od wniosku do WKW
Prowizja agencji nieruchomości
VAT od prowizji agencji nieruchomości
Wypisy aktu notarialnego - około
RAZEM (cena + opłaty)

Podobne oferty

oferta specjalna
mieszkanie na sprzedaż - Bydgoszcz, Bielawy

mieszkanie na sprzedaż

Bydgoszcz, Bielawy
3 pokoje 60,56 m2 11 900,00 zł/m2
oferta specjalna
mieszkanie na sprzedaż - Bydgoszcz, Bielawy

mieszkanie na sprzedaż

Bydgoszcz, Bielawy
3 pokoje 59,83 m2 11 800,00 zł/m2
oferta specjalna
mieszkanie na sprzedaż - Bydgoszcz, Bartodzieje

mieszkanie na sprzedaż

Bydgoszcz, Bartodzieje
3 pokoje 56,29 m2 11 060,58 zł/m2
bez prowizji
mieszkanie na sprzedaż - Bydgoszcz, Czyżkówko

mieszkanie na sprzedaż

Bydgoszcz, Czyżkówko
3 pokoje 60,10 m2 11 050,00 zł/m2

Napisz do nas

Proszę wypełnić to pole
Proszę wypełnić to pole
Proszę wypełnić to pole
Proszę wypełnić to pole
Trwa wysyłanie...

Ta strona wykorzystuje pliki cookies w celach statystycznych oraz w celu dostosowania naszych serwisów do indywidualnych potrzeb klientów. Zmiany ustawień dotyczących plików cookie można dokonać w dowolnej chwili modyfikując ustawienia przeglądarki. Korzystanie z tej strony bez zmian ustawień dotyczących cookies oznacza, że będą one zapisane w pamięci urządzenia.

rozumiem