Osielsko, Niemcz

Mieszkanie na sprzedaż

Opis nieruchomości

Szukasz NOWEGO DEVELOPERSKIEGO mieszkania/domu?
Zależy Ci na cichej okolicy i bliskości terenów zielonych?
Potrzebujesz bezpieczeństwa w postaci zamkniętego osiedla?

Jeśli TAK to ta oferta jest właśnie dla Ciebie !!


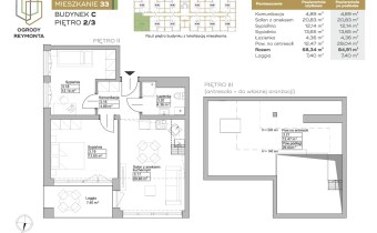
Przedstawiamy 4 pokojowe wygodne dwupoziomowe mieszkanie o powierzchni 68,34m2, natomiast z antresolą po podłodze aż 84,91!! w budynku zlokalizowanym w Niemczu w urokliwym otoczeniu Parku w Myślęcinku


Opis inwestycji:


Nowo powstająca wyjątkowa inwestycja zlokalizowana w Niemczu — uznawanym za jedno z najlepszych miejsc do zamieszkania w regionie — w bezpośrednim sąsiedztwie Myślęcinka, największego parku miejskiego w Polsce. Otoczenie setek hektarów zieleni, tras spacerowych i rowerowych tworzy przestrzeń sprzyjającą aktywnemu, a jednocześnie spokojnemu stylowi życia.

Projekt wyróżnia się ponadprzeciętnym standardem architektury, jakości wykonania oraz zagospodarowania terenu, wyraźnie wyprzedzającym lokalne standardy rynkowe. Starannie zaprojektowana komunikacja wspólna w stylu eleganckiego hotelu, reprezentacyjne strefy wejściowe oraz duże odległości pomiędzy budynkami zapewniają mieszkańcom komfort, prywatność i poczucie przestrzeni. Dbałość o każdy detal i zachowany starodrzew podkreślają prestiżowy charakter inwestycji oraz jej harmonijne wpisanie w naturalne otoczenie.

Nowoczesne rozwiązania w duchu „go green" — fotowoltaika, system odzysku wody deszczowej oraz automatyczne nawadnianie zieleni — łączą estetykę z odpowiedzialnością środowiskową. Atrakcyjna polityka cenowa w zestawieniu z wysokim standardem sprawia, że nowo powstająca inwestycja jest świadomym wyborem dla osób poszukujących jakości, spokoju i bezpośredniego kontaktu z naturą — zarówno dla tych, którzy cenią aktywny styl życia, jak i dla rodzin z dziećmi czy seniorów. 

Pełna infrastruktura, spokojne otoczenie i bliskość Myślęcinka – największego parku miejskiego w Polsce!!

Inwestycja powstaje w wyjątkowo malowniczej części Niemcza – dosłownie kilka metrów od granicy Myślęcinka. To lokalizacja, która łączy naturę z wygodą codziennego życia.

W bezpośrednim sąsiedztwie znajdują się sklepy, markety, szkoła oraz przedszkola. Przystanki komunikacji miejskiej zlokalizowane są praktycznie przy samej działce od strony ul. Słowackiego, co zapewnia szybki i wygodny dojazd do centrum Bydgoszczy.

Paczkomaty, apteka, place zabaw, zewnętrzne siłownie, tereny rekreacyjne – wszystko jest tu w zasięgu kilku minut spacerem.

Dodatkowym atutem jest położenie osiedla na wzniesieniu. To naturalna osłona od niżej położonych ulic, a jednocześnie doskonałe połączenie z miastem.
Ta lokalizacja daje więc to, co najlepsze: naturę, wygodę i świetną komunikację – w jednym miejscu.
 

WSZYSTKO W ZASIĘGU RĘKI!!

  • Przystanek autobusowy - przy granicy działki (ul. Słowackiego)
  • Ogród Botaniczny Myślęcinek - ok. 700 m 
  • Markety – ok. 350 m (Polo Market), ok. 1,9 km (Lidl), ok. 1,8 km (Biedronka), ok. 2,3 km  (Netto)
  • Sklep spożywczy – ok. 300 m,
  • Szkoła podstawowa w Niemczu – ok. 900 m,
  • Przedszkole publiczne w Niemczu – ok. 700 m, 
  • Przedszkole niepubliczne - ok. 900 m,
  • Publiczny plac zabaw – ok. 650 m,
  • Świetlica gminna – ok. 700 m,
  • Orlik i siłownia zewnętrzna – ok. 700 m,
  • Kościół – ok. 500 m,
  • Placówka pocztowa – ok. 900 m,
  • Najbliższe placówki zdrowotne - ok. 300 m (stomatologia), ok. 650 m (weterynaria), ok. 800 (zdrowie ogólne)
  • ...i wiele innych udogodnień
Budynek zostanie wybudowany w IV kwartale 2027


Zapraszam na prezentację!!

Nota prawna

Opis oferty zawarty na stronie internetowej sporządzany jest na podstawie oględzin nieruchomości oraz informacji uzyskanych od właściciela, może podlegać aktualizacji i nie stanowi oferty określonej w art. 66 i następnych K.C.

Szczegóły oferty

Symbol oferty MAK-MS-29684
Powierzchnia 68,34 m²
Powierzchnia użytkowa 68,34 m²
Liczba pokoi 4
Piętro 2
Rodzaj budynku blok
Technologia budowlana silikat
Standard
Liczba pięter w budynku 2
Stan prawny Własność
Balkon jest
Rok budowy 2027
Ogrzewanie miejskie
Winda tak

Lokalizacja

Kalkulator kredytowy

PLN
%
Wysokość raty

Kalkulator kosztów

PLN
PLN
PLN
PLN
PLN
PLN
%
PLN
Podatek od czynności cywilno-prawnych
Taksa notarialna (opłata notarialna)
VAT od taksy notarialnej (opłaty notarialnej)
Wniosek do WKW
VAT od wniosku do WKW
Prowizja agencji nieruchomości
VAT od prowizji agencji nieruchomości
Wypisy aktu notarialnego - około
RAZEM (cena + opłaty)

Podobne oferty

nowa oferta
mieszkanie na sprzedaż - Osielsko, Niemcz

mieszkanie na sprzedaż

Osielsko, Niemcz
3 pokoje 92,21 m2 8 448,12 zł/m2
oferta na wyłączność
mieszkanie na sprzedaż - Osielsko

mieszkanie na sprzedaż

Osielsko
2 pokoje 64,12 m2 9 887,71 zł/m2
oferta specjalna
mieszkanie na sprzedaż - Osielsko, Niemcz

mieszkanie na sprzedaż

Osielsko, Niemcz
4 pokoje 94,90 m2 9 325,61 zł/m2
oferta specjalna
mieszkanie na sprzedaż - Osielsko, Niemcz

mieszkanie na sprzedaż

Osielsko, Niemcz
3 pokoje 55,87 m2 10 700,00 zł/m2

Napisz do nas

Proszę wypełnić to pole
Proszę wypełnić to pole
Proszę wypełnić to pole
Proszę wypełnić to pole
Trwa wysyłanie...

Ta strona wykorzystuje pliki cookies w celach statystycznych oraz w celu dostosowania naszych serwisów do indywidualnych potrzeb klientów. Zmiany ustawień dotyczących plików cookie można dokonać w dowolnej chwili modyfikując ustawienia przeglądarki. Korzystanie z tej strony bez zmian ustawień dotyczących cookies oznacza, że będą one zapisane w pamięci urządzenia.

rozumiem