Bydgoszcz, Śródmieście

Mieszkanie na sprzedaż

Opis nieruchomości

Szukasz NOWEGO DEVELOPERSKIEGO mieszkania w świetnej lokalizacji?
Zależy Ci na cichej okolicy i bliskości Centrum miasta?
Potrzebujesz bezpieczeństwa w postaci zamkniętego osiedla?

Jeśli TAK to ta oferta jest właśnie dla Ciebie !!


Kupujący nie płaci podatku PCC!! oraz prowizji do biura!!



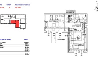
Przedstawiamy 3 pokojowe mieszkanie o powierzchni 58,24 m2 na parterze nowoczesnego bloku 


Opis inwestycji:


Nowa inwestycja w bliskości Centrum miasta to jedyna w swoim rodzaju propozycja na mapie Bydgoszczy. Nowoczesny 3 piętrowy budynek zrealizowany zostanie w wysokim standardzie budowlanym.

Niewątpliwym udogodnieniem, wyróżniającym budynek wśród bydgoskich inwestycji mieszkaniowych, jest jego bardzo dobra lokalizacja. Bliskość Centrum miasta jest na wyciągnięcie ręki

Nowa inwestycja to nie tylko nowoczesna architektura. Budynek wypełniony będzie licznymi udogodnieniami zapewniającymi komfort życia na najwyższym poziomie. Elegancka i ponadczasowa klatka schodowa, wykończona bardzo dobrymi materiałami będzie wizytówką budynku..

Na osiedlu z pewnością nie zbraknie także urozmaiconych gatunków roślin wpasowujących się w śródmiejski klimat otaczający inwestycję

Zróżnicowane metraże i starannie przemyślane układy sprawiają, że znajdziesz tu swój wymarzony dom. Z myślą o komforcie mieszkańców zadbano o ograniczenie do minimum ruchu pojazdów na osiedlu, które zaraz po wjeździe skierują się do garaży podziemnych.

Lokalizacja:

Wyspa Młyńska - zaledwie 15 minut spacerem od planowanej inwestycji znajduje się malownicza Wyspa Młyńska. To idealne miejsce na relaksujący spacer wśród zieleni, piknik z przyjaciółmi lub spokojny wypoczynek nad wodą.
Stare Miasto - w ciągu 20 minut pieszo dotrzesz do tętniącego życiem Starego Miasta, gdzie czeka na Ciebie bogata oferta kulturalna, restauracje, kawiarnie oraz zabytkowe budowle, takie jak Katedra Bydgoska czy słynne Spichrze nad Brdą.
Opera Nova - miłośnicy sztuki docenią bliskość Opery Nova, do której dotrzesz w zaledwie 15 minut. To doskonałe miejsce, aby cieszyć się spektaklami operowymi, baletowymi oraz koncertami w wyjątkowej atmosferze.

Zapraszam na prezentację!!

Nota prawna

Opis oferty zawarty na stronie internetowej sporządzany jest na podstawie oględzin nieruchomości oraz informacji uzyskanych od właściciela, może podlegać aktualizacji i nie stanowi oferty określonej w art. 66 i następnych K.C.

Szczegóły oferty

Symbol oferty MAK-MS-29160
Powierzchnia 58,24 m²
Powierzchnia użytkowa 58,24 m²
Liczba pokoi 3
Piętro parter
Rodzaj budynku blok
Technologia budowlana silikat
Standard
Liczba pięter w budynku 3
Stan prawny Własność
Balkon jest
Rok budowy 2025
Ogrzewanie miejskie
Winda tak

Lokalizacja

Kalkulator kredytowy

PLN
%
Wysokość raty

Kalkulator kosztów

PLN
PLN
PLN
PLN
PLN
PLN
%
PLN
Podatek od czynności cywilno-prawnych
Taksa notarialna (opłata notarialna)
VAT od taksy notarialnej (opłaty notarialnej)
Wniosek do WKW
VAT od wniosku do WKW
Prowizja agencji nieruchomości
VAT od prowizji agencji nieruchomości
Wypisy aktu notarialnego - około
RAZEM (cena + opłaty)

Podobne oferty

oferta specjalna
mieszkanie na sprzedaż - Bydgoszcz, Bielawy

mieszkanie na sprzedaż

Bydgoszcz, Bielawy
3 pokoje 60,56 m2 11 900,00 zł/m2
oferta specjalna
mieszkanie na sprzedaż - Bydgoszcz, Bielawy

mieszkanie na sprzedaż

Bydgoszcz, Bielawy
2 pokoje 40,01 m2 12 800,00 zł/m2
oferta specjalna
mieszkanie na sprzedaż - Bydgoszcz, Bielawy

mieszkanie na sprzedaż

Bydgoszcz, Bielawy
3 pokoje 59,83 m2 11 800,00 zł/m2
oferta specjalna
mieszkanie na sprzedaż - Bydgoszcz, Bielawy

mieszkanie na sprzedaż

Bydgoszcz, Bielawy
2 pokoje 40,42 m2 12 900,00 zł/m2

Napisz do nas

Proszę wypełnić to pole
Proszę wypełnić to pole
Proszę wypełnić to pole
Proszę wypełnić to pole
Trwa wysyłanie...

Ta strona wykorzystuje pliki cookies w celach statystycznych oraz w celu dostosowania naszych serwisów do indywidualnych potrzeb klientów. Zmiany ustawień dotyczących plików cookie można dokonać w dowolnej chwili modyfikując ustawienia przeglądarki. Korzystanie z tej strony bez zmian ustawień dotyczących cookies oznacza, że będą one zapisane w pamięci urządzenia.

rozumiem