Bydgoszcz, Kapuściska

Mieszkanie na sprzedaż

Opis nieruchomości

Biuro Makler poleca: 

Szukasz NOWEGO DEVELOPERSKIEGO mieszkania?
Zależy Ci na cichej okolicy, oraz bliskości terenów zielonych?
Potrzebujesz bezpieczeństwa w postaci zamkniętego osiedla, oraz pełnej infrastruktury wokół?

Jeśli TAK to ta oferta jest właśnie dla Ciebie !!


Kupujący nie płaci podatku PCC!! oraz prowizji do biura!!



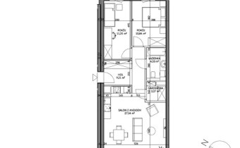
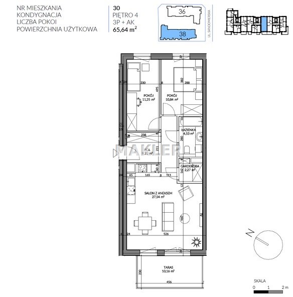
Przedstawiamy 3 pokojowe mieszkanie o powierzchni 65,67 m2 na 4 piętrze w bloku z cichą windą.


Opis inwestycji


NOWE KAPUŚCISKA to dwa pięciopiętrowe budynki mieszkalne z podziemną halą parkingową oraz windą zapewniającą szybką i wygodną komunikację pomiędzy poszczególnymi kondygnacjami a podziemnym parkingiem.

Śmiała geometryczna koncepcja przyciąga wzrok nowoczesnymi podziałami i kolorami. Podziemna hala garażowa zapewnia komfort użytkowania, a funkcjonalna winda podnosi standard mieszkania. Ponadto minimalistyczne klatki schodowe zwiększają powierzchnię mieszkań, a umiejscowienie windy w środku biegu zapewnia większy komfort akustyczny w lokalach.

Mieszkania wyposażone są w nowoczesny system ogrzewania i wentylacji. Dzięki zastosowaniu Logoterm ciepła woda przygotowywana jest w bezpośrednim sąsiedztwie każdego mieszkania zamiast w pomieszczeniu węzła, które znajduje się w piwnicy i może być oddalone od mieszkania nawet o kilkadziesiąt metrów. Wentylacja hybrydowa zapewnia natomiast stałą, niezakłóconą wymianę powietrza w mieszkaniu. System reaguje na poziom wilgotności powietrza wewnątrz mieszkania i reguluje automatycznie strumień napływającego świeżego powietrza.

"Nowe Kapuściska" to pierwsza tego typu inwestycja na Kapuściskach od wielu lat! Nowoczesne budownictwo, windy, przemyślane układy mieszkań to tylko kilka z atutów Nowych Kapuścisk. Teren wokół budynku jest ogrodzony i zaprojektowany w awangardowy i geometryczny sposób pasujący do elewacji. Sąsiedztwo jest estetyczne i zadbane. Zgodnie z dawną sztuką projektowania urbanistycznego odległości pomiędzy pozostałymi osiedlowymi budynkami są znaczne i wydzielane zielenią, co zwiększa komfort mieszkania. W niewielkiej odległości od inwestycji znajdują się rozległe tereny zielone. Dobrze skomunikowana dzielnica z kompletną infrastrukturą ułatwiającą mieszkanie.

Zapraszam na prezentację!!

Nota prawna

Opis oferty zawarty na stronie internetowej sporządzany jest na podstawie oględzin nieruchomości oraz informacji uzyskanych od właściciela, może podlegać aktualizacji i nie stanowi oferty określonej w art. 66 i następnych K.C.

Szczegóły oferty

Inwestycja Nowe Kapuściska
Symbol oferty MAK-MS-29559
Powierzchnia 65,64 m²
Powierzchnia użytkowa 65,64 m²
Liczba pokoi 3
Piętro 4
Rodzaj budynku blok
Technologia budowlana silikat
Standard
Liczba pięter w budynku 5
Stan prawny Własność
Balkon jest
Rok budowy 2023
Ogrzewanie miejskie
Winda tak

Lokalizacja

Kalkulator kredytowy

PLN
%
Wysokość raty

Kalkulator kosztów

PLN
PLN
PLN
PLN
PLN
PLN
%
PLN
Podatek od czynności cywilno-prawnych
Taksa notarialna (opłata notarialna)
VAT od taksy notarialnej (opłaty notarialnej)
Wniosek do WKW
VAT od wniosku do WKW
Prowizja agencji nieruchomości
VAT od prowizji agencji nieruchomości
Wypisy aktu notarialnego - około
RAZEM (cena + opłaty)

Podobne oferty

bez prowizji
mieszkanie na sprzedaż - Bydgoszcz, Czyżkówko

mieszkanie na sprzedaż

Bydgoszcz, Czyżkówko
3 pokoje 60,10 m2 11 050,00 zł/m2
bez prowizji
mieszkanie na sprzedaż - Bydgoszcz, Bielawy

mieszkanie na sprzedaż

Bydgoszcz, Bielawy
2 pokoje 41,80 m2 14 856,46 zł/m2
mieszkanie na sprzedaż - Bydgoszcz, Wzgórze Wolności

mieszkanie na sprzedaż

Bydgoszcz, Wzgórze Wolności
2 pokoje 42,00 m2 11 714,29 zł/m2
mieszkanie na sprzedaż - Bydgoszcz, Wzgórze Wolności

mieszkanie na sprzedaż

Bydgoszcz, Wzgórze Wolności
4 pokoje 74,33 m2 9 511,64 zł/m2

Napisz do nas

Proszę wypełnić to pole
Proszę wypełnić to pole
Proszę wypełnić to pole
Proszę wypełnić to pole
Trwa wysyłanie...

Ta strona wykorzystuje pliki cookies w celach statystycznych oraz w celu dostosowania naszych serwisów do indywidualnych potrzeb klientów. Zmiany ustawień dotyczących plików cookie można dokonać w dowolnej chwili modyfikując ustawienia przeglądarki. Korzystanie z tej strony bez zmian ustawień dotyczących cookies oznacza, że będą one zapisane w pamięci urządzenia.

rozumiem