Bydgoszcz, Centrum

Mieszkanie na sprzedaż

Opis nieruchomości

PROMOCJA!!! W ramach Promocji Uczestnikowi przysługuje jedno świadczenie do wyboru: miejsce parkingowe, albo usługa wykończenia lokalu mieszkalnego pod klucz!!!

Prestiżowy apartament w samym sercu miasta, będący prawdziwym synonimem luksusu i komfortu.

Majestatyczna architektura budynku oraz reprezentacyjne klatki schodowe już od progu podkreślają ekskluzywny charakter tej wyjątkowej inwestycji.

Kupujący nie płaci podatku PCC!! oraz prowizji do biura!!

Części wspólne stanowią harmonijne połączenie nowoczesnych rozwiązań z ponadczasowym stylem retro, inspirowanym elegancją francuskiego designu. Starannie zaprojektowane wnętrza zachowują niepowtarzalny klimat historycznej kamienicy, jednocześnie oferując nowoczesne udogodnienia, które znacząco podnoszą komfort codziennego życia. W bezpośrednim sąsiedztwie znajdują się liczne parki oraz tereny rekreacyjne, doskonałe zarówno do relaksujących spacerów, jak i aktywnego wypoczynku na świeżym powietrzu.
 

Dodatkowo istnieje możliwość zakupu miejsc postojowych, zapewniających wygodę i bezpieczeństwo na co dzień.
Do dyspozycji przyszłych właścicieli pozostaje miejsce w hali garażowej w cenie 55 000 zł, a także miejsce postojowe zewnętrzne w cenie 33 000 zł.
Parkowane pojazdy mają zapewniony dostęp do infrastruktury ładowania, co stanowi idealne rozwiązanie dla właścicieli samochodów elektrycznych i hybrydowych. To nowoczesne udogodnienie wpisuje się w proekologiczny charakter inwestycji i znacząco podnosi komfort codziennego użytkowania.

To praktyczne udogodnienia, które znacząco podnoszą komfort życia w prestiżowej

To propozycja dla osób ceniących prestiż, estetykę i najwyższą jakość – idealne miejsce do życia lub bezpieczna lokata kapitału w jednej z najbardziej pożądanych lokalizacji miasta.

To propozycja dla osób ceniących prestiż, estetykę i najwyższą jakość – idealne miejsce do życia lub bezpieczna lokata kapitału w jednej z najbardziej pożądanych lokalizacji miasta.
 

Szukasz NOWEGO DEVELOPERSKIEGO mieszkania w świetnej lokalizacji?
Zależy Ci na cichej okolicy i bliskości Centrum miasta?
Potrzebujesz bezpieczeństwa w postaci zamkniętego osiedla?

Jeśli TAK to ta oferta jest właśnie dla Ciebie !!

Nota prawna

Opis oferty zawarty na stronie internetowej sporządzany jest na podstawie oględzin nieruchomości oraz informacji uzyskanych od właściciela, może podlegać aktualizacji i nie stanowi oferty określonej w art. 66 i następnych K.C.

Szczegóły oferty

Symbol oferty MAK-MS-29734
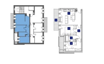
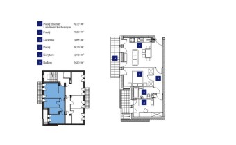
Powierzchnia 47,02 m²
Powierzchnia użytkowa 47,02 m²
Liczba pokoi 3
Piętro 2
Rodzaj budynku apartamentowiec
Technologia budowlana tradycyjna murowana
Liczba pięter w budynku 3
Stan prawny Własność
Balkon jest
Rok budowy 2027
Ogrzewanie C.O. miejskie
Winda tak

Lokalizacja

Kalkulator kredytowy

PLN
%
Wysokość raty

Kalkulator kosztów

PLN
PLN
PLN
PLN
PLN
PLN
%
PLN
Podatek od czynności cywilno-prawnych
Taksa notarialna (opłata notarialna)
VAT od taksy notarialnej (opłaty notarialnej)
Wniosek do WKW
VAT od wniosku do WKW
Prowizja agencji nieruchomości
VAT od prowizji agencji nieruchomości
Wypisy aktu notarialnego - około
RAZEM (cena + opłaty)

Podobne oferty

bez prowizji
mieszkanie na sprzedaż - Bydgoszcz, Bielawy

mieszkanie na sprzedaż

Bydgoszcz, Bielawy
2 pokoje 41,80 m2 14 856,46 zł/m2
mieszkanie na sprzedaż - Bydgoszcz, Wzgórze Wolności

mieszkanie na sprzedaż

Bydgoszcz, Wzgórze Wolności
2 pokoje 42,00 m2 11 714,29 zł/m2
mieszkanie na sprzedaż - Bydgoszcz, Wzgórze Wolności

mieszkanie na sprzedaż

Bydgoszcz, Wzgórze Wolności
4 pokoje 74,33 m2 9 511,64 zł/m2
oferta specjalna
mieszkanie na sprzedaż - Bydgoszcz, Centrum

mieszkanie na sprzedaż

Bydgoszcz, Centrum
3 pokoje 66,25 m2 9 800,00 zł/m2

Napisz do nas

Proszę wypełnić to pole
Proszę wypełnić to pole
Proszę wypełnić to pole
Proszę wypełnić to pole
Trwa wysyłanie...

Ta strona wykorzystuje pliki cookies w celach statystycznych oraz w celu dostosowania naszych serwisów do indywidualnych potrzeb klientów. Zmiany ustawień dotyczących plików cookie można dokonać w dowolnej chwili modyfikując ustawienia przeglądarki. Korzystanie z tej strony bez zmian ustawień dotyczących cookies oznacza, że będą one zapisane w pamięci urządzenia.

rozumiem