Biuro Makler poleca:
Szukasz NOWEGO DEVELOPERSKIEGO mieszkania?
Zależy Ci na cichej okolicy, oraz bliskości terenów zielonych?
Potrzebujesz bezpieczeństwa w postaci zamkniętego osiedla, oraz pełnej infrastruktury wokół?
Jeśli TAK to ta oferta jest właśnie dla Ciebie !!
Kupujący nie płaci podatku PCC!! oraz prowizji do biura!!
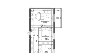
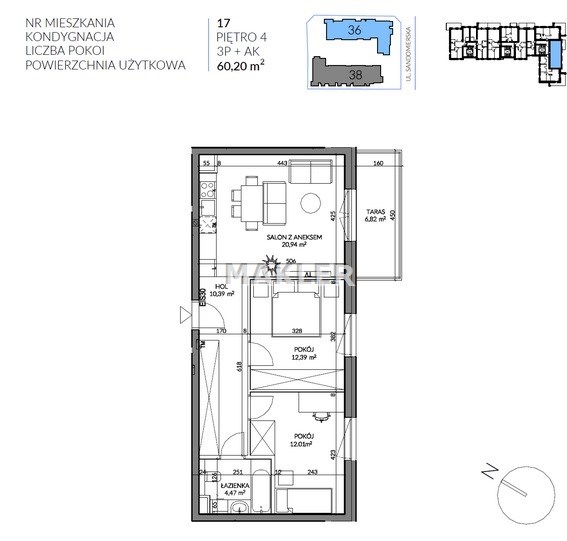
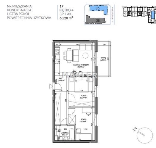
Przedstawiamy 3 pokojowe mieszkanie o powierzchni 60,2 m2 na 4 piętrze w bloku z cichą windą.
Opis inwestycji
NOWE KAPUŚCISKA to dwa pięciopiętrowe budynki mieszkalne z podziemną halą parkingową oraz windą zapewniającą szybką i wygodną komunikację pomiędzy poszczególnymi kondygnacjami a podziemnym parkingiem.
Śmiała geometryczna koncepcja przyciąga wzrok nowoczesnymi podziałami i kolorami. Podziemna hala garażowa zapewnia komfort użytkowania, a funkcjonalna winda podnosi standard mieszkania. Ponadto minimalistyczne klatki schodowe zwiększają powierzchnię mieszkań, a umiejscowienie windy w środku biegu zapewnia większy komfort akustyczny w lokalach.
Mieszkania wyposażone są w nowoczesny system ogrzewania i wentylacji. Dzięki zastosowaniu Logoterm ciepła woda przygotowywana jest w bezpośrednim sąsiedztwie każdego mieszkania zamiast w pomieszczeniu węzła, które znajduje się w piwnicy i może być oddalone od mieszkania nawet o kilkadziesiąt metrów. Wentylacja hybrydowa zapewnia natomiast stałą, niezakłóconą wymianę powietrza w mieszkaniu. System reaguje na poziom wilgotności powietrza wewnątrz mieszkania i reguluje automatycznie strumień napływającego świeżego powietrza.
"Nowe Kapuściska" to pierwsza tego typu inwestycja na Kapuściskach od wielu lat! Nowoczesne budownictwo, windy, przemyślane układy mieszkań to tylko kilka z atutów Nowych Kapuścisk. Teren wokół budynku jest ogrodzony i zaprojektowany w awangardowy i geometryczny sposób pasujący do elewacji. Sąsiedztwo jest estetyczne i zadbane. Zgodnie z dawną sztuką projektowania urbanistycznego odległości pomiędzy pozostałymi osiedlowymi budynkami są znaczne i wydzielane zielenią, co zwiększa komfort mieszkania. W niewielkiej odległości od inwestycji znajdują się rozległe tereny zielone. Dobrze skomunikowana dzielnica z kompletną infrastrukturą ułatwiającą mieszkanie.
Zapraszam na prezentację!!



