Biuro Makler poleca:
Szukasz NOWEGO DEVELOPERSKIEGO mieszkania?
Zależy Ci na cichej okolicy i bliskości terenów zielonych?
Potrzebujesz bezpieczeństwa w postaci zamkniętego osiedla?
Jeśli TAK to ta oferta jest właśnie dla Ciebie !!
Kupujący nie płaci podatku PCC!! oraz prowizji do biura!!
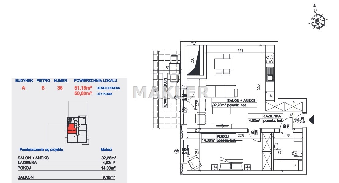
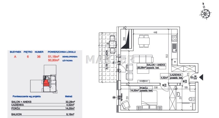
Przedstawiamy 2 pokojowe mieszkanie o powierzchni 50m2 na 6 piętrze bloku z cichą windą.
Opis inwestycji
Pierwszy budynek inwestycji w bydgoskich Bartodziejach zostanie zrealizowany w II kwartale 2025 roku, w którym będzie znajdować się tylko 36 mieszkań. Warto podkreślić kameralność i małą ilość mieszkańców, ale przede wszystkim lokalizację. Inwestycja wybudowana w sercu osiedla Bartodzieje, które w ostatnich latach stało się najchętniej wybieranym osiedlem z pośród osób poszukujących swojego miejsca na ziemi. W pobliżu komunikacja publiczna, szkoły, przedszkola, basen, sklepy i usługi. Sąsiedztwo terenów rekreacyjnych, w tym tak lubianego przez mieszkańców Bydgoszczy Balatonu, zapewni relaks całej rodzinie.
Deweloper zapewnił swoim przyszłym mieszkańcom funkcjonalne i przestronne układy mieszkań wyposażone w trzyszybowe wielkie okna, które wygłuszają wszelkie hałasy z zewnątrz, dając przy tym niezwykłe doświetlenie każdego z pomieszczeń. Każde mieszkanie posiada wysokiej klasy drzwi antywłamaniowe. Poza tym ważnym elementem jest zapewnienie bezpieczeństwa w postaci monitorowanego i zamkniętego osiedla.
Lokalizacja
Największym atutem budowanej inwestycji jest lokalizacja. Każdy z mieszkańców w bliskiej odległości ma możliwość dostępu do wszystkiego co może dać nowoczesne i przyjazne miasto. Świetnie rozwinięta komunikacja miejska, pozwalająca dojechać w każdy zakątek miasta, bliskość sklepów, galerii handlowych, przychodni, szpitala, terenów zielonych z Balatonem na czele, bliskość budynków kultury, rekreacji i obiektów sportowych daje poczucie iż to miejsce na ziemi jest tym którego pragniemy i które szukamy
Zapraszam na prezentację!!



