Bydgoszcz, Fordon, Stary Fordon

Mieszkanie na sprzedaż

Opis nieruchomości

Biuro Makler poleca: 

Szukasz NOWEGO DEVELOPERSKIEGO mieszkania?
Zależy Ci na cichej okolicy, oraz bliskości terenów zielonych?
Potrzebujesz bezpieczeństwa w postaci zamkniętego osiedla, oraz pełnej infrastruktury wokół?

Jeśli TAK to ta oferta jest właśnie dla Ciebie !!


Kupujący nie płaci podatku PCC!! oraz prowizji do biura!!



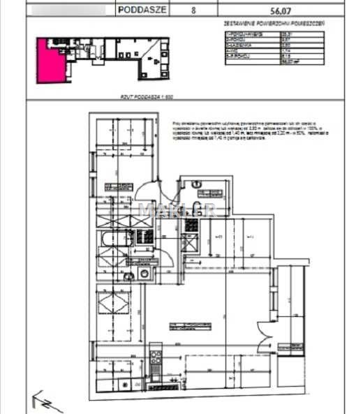
Przedstawiamy 3 pokojowe mieszkanie o powierzchni 56,07 m2 na 3 piętrze w bloku usytuowanym w bliskości pięknych terenów zielonych.


Budynek świeżo oddany do użytkowania!! Nic tylko wykańczać i mieszkać!!

Śpiesz się, gdyż te mieszkania szybko zostaną wyprzedane!!



Opis inwestycji:


Mieszkania z widokiem na Wisłę!


Nowo powstała inwestycja to budynek mieszkalny o 3 kondygnacjach naziemnych z poddaszem użytkowym w zabudowie pierzejowej, w którym zaprojektowano 16 mieszkań: od 30 do 57 m2, lokal usługowy oraz 6 garaży. Dwa mieszkania w parterze przystosowano w pełni dla potrzeb osób niepełnosprawnych.

Inwestycja położona jest w dzielnicy Starego Fordonu, który w ramach rewitalizacji został  zmodernizowany i odnowiony. Przebudowano wiele uliczek, odnowiono kamienice a płytę rynku wyposażono w efektowną fontannę. Nabrzeże Wisły wyposażono w oświetlenie, ławki i siedziska, stojaki na rowery, w kamery obrotowe, które zostały połączone z monitoringiem miejskim. Wzmocnienie potencjału nadbrzeża posłuży Mieszkańcom na korzystanie z transportu wodnego i stało się miejscem wypoczynku, rekreacji oraz doskonałym punktem widokowym na Wisłę.
Budynek jest świetnie zlokalizowany. Przystanki komunikacji miejskiej znajdują się zaraz obok
a najbliższy sieciowy market spożywczego odległy jest o kilka kroków. Po drugiej stronie ulicy, przy Synagodze, niedawno powstał letni ogródek z ofertą gastronomiczną.  

Kliknij " wyślij wiadomość " bądź zadzwoń aby dowiedzieć się więcej!


Zapraszam na prezentację!!



Pełny cennik wszystkich lokali i dodatkowych elementów znajduje się tutaj:
www.pubr.com.pl

Nota prawna

Opis oferty zawarty na stronie internetowej sporządzany jest na podstawie oględzin nieruchomości oraz informacji uzyskanych od właściciela, może podlegać aktualizacji i nie stanowi oferty określonej w art. 66 i następnych K.C.

Szczegóły oferty

Inwestycja Fordon nad Wisłą
Symbol oferty MAK-MS-27875
Powierzchnia 56,07 m²
Powierzchnia użytkowa 56,07 m²
Liczba pokoi 3
Piętro 3
Rodzaj budynku blok
Technologia budowlana silikat
Standard
Liczba pięter w budynku 3
Stan prawny Własność
Balkon jest
Rok budowy 2024
Ogrzewanie miejskie

Lokalizacja

Kalkulator kredytowy

PLN
%
Wysokość raty

Kalkulator kosztów

PLN
PLN
PLN
PLN
PLN
PLN
%
PLN
Podatek od czynności cywilno-prawnych
Taksa notarialna (opłata notarialna)
VAT od taksy notarialnej (opłaty notarialnej)
Wniosek do WKW
VAT od wniosku do WKW
Prowizja agencji nieruchomości
VAT od prowizji agencji nieruchomości
Wypisy aktu notarialnego - około
RAZEM (cena + opłaty)

Podobne oferty

oferta specjalna
mieszkanie na sprzedaż - Bydgoszcz, Bielawy

mieszkanie na sprzedaż

Bydgoszcz, Bielawy
3 pokoje 60,56 m2 11 900,00 zł/m2
oferta specjalna
mieszkanie na sprzedaż - Bydgoszcz, Bielawy

mieszkanie na sprzedaż

Bydgoszcz, Bielawy
2 pokoje 40,01 m2 12 800,00 zł/m2
oferta specjalna
mieszkanie na sprzedaż - Bydgoszcz, Bielawy

mieszkanie na sprzedaż

Bydgoszcz, Bielawy
3 pokoje 59,83 m2 11 800,00 zł/m2
oferta specjalna
mieszkanie na sprzedaż - Bydgoszcz, Bielawy

mieszkanie na sprzedaż

Bydgoszcz, Bielawy
2 pokoje 40,42 m2 12 900,00 zł/m2

Napisz do nas

Proszę wypełnić to pole
Proszę wypełnić to pole
Proszę wypełnić to pole
Proszę wypełnić to pole
Trwa wysyłanie...

Ta strona wykorzystuje pliki cookies w celach statystycznych oraz w celu dostosowania naszych serwisów do indywidualnych potrzeb klientów. Zmiany ustawień dotyczących plików cookie można dokonać w dowolnej chwili modyfikując ustawienia przeglądarki. Korzystanie z tej strony bez zmian ustawień dotyczących cookies oznacza, że będą one zapisane w pamięci urządzenia.

rozumiem