Bydgoszcz, Okole

Mieszkanie na sprzedaż

Opis nieruchomości

Biuro Makler poleca:


Szukasz NOWEGO DEVELOPERSKIEGO mieszkania?
Zależy Ci na mieszkaniu w centrum miasta i bliskości terenów zielonych?
Potrzebujesz bezpieczeństwa w postaci zamkniętego osiedla?

Jeśli TAK to ta oferta jest właśnie dla Ciebie !!


Nowa inwestycja w Centrum Bydgoszczy!!


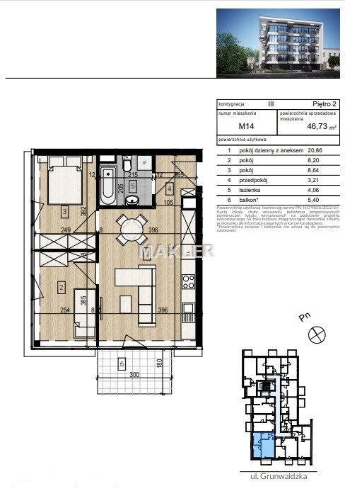
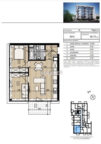
Mieszkanie 3 pokojowe o powierzchni 45m2, na 2 piętrze nowo powstałego budynku. 


Fenomenalnie mieszkanie pod inwestycję, jaki dla własnego zamieszkania!!


Wybudowanie inwestycji: do 31.12.2025

 

Wśród nowych inwestycji deweloperskich w Bydgoszczy ta inwestycja wyróżnia się nowoczesnym designem oraz kameralnością w postaci niewielu mieszkań w budynku, niezwykle różnorodnych zarówno pod względem metrażu, jak i innych parametrów. 

W standardzie inwestycji znajduje się:

  • System inteligentnego sterowania mieszkaniem FIBARO umożliwiający m.in. zdalne sterowanie ogrzewaniem oraz roletami okiennymi
  • Wideodomofony
  • Ogrzewanie podłogowe dla komfortu i swobody aranżacji pomieszczeń nieograniczonej umieszczeniem grzejnika
  • Deska kompozytowa na balkonach i tarasach
  • Panoramiczne okna trzyszybowe z roletami
  • Komórki lokatorskie 
  • Nowoczesna aranżacja korytarzy i klatek schodowych
  • Miejsca postojowe z monitoringiem
  • Cichobieżne windy
  • Osiedle w pełni monitorowane z kodowaną kontrolą dostępu do pomieszczeń wspólnych

Deweloper zadbał o świetną lokalizację inwestycji.  Lokalizacja w centrum zapewnia dostęp do różnorodnych usług oraz łatwą komunikację z pozostałymi dzielnicami miasta.

Sąsiedztwo malowniczego parku nad kanałem pozwala zarówno na spokojny odpoczynek, jak i na aktywne spędzanie wolnego czasu w otoczeniu przyrody. Mieszkania zlokalizowane na ulicy Grunwaldzkiej w stanie deweloperskim zapewnią Ci tak bliskość natury, jak i ważnych węzłów komunikacyjnych oraz punktów handlowych.

Mieszkania, które oferuje deweloper w Bydgoszczy to spełnienie marzeń osób kochających kontakt z przyrodą, ale też liczne wydarzenia kulturowe czy zwyczajny dostęp do wszystkiego, co dzieje się w mieście. Park nad starym kanałem to przede wszystkim:

  • ścieżki i trasy rowerowe,
  • bliskość natury,
Kliknij " wyślij wiadomość " bądź zadzwoń aby dowiedzieć się więcej!


Zapraszam na prezentację!!



Pełny cennik wszystkich lokali i dodatkowych elementów znajduje się tutaj:
www.grunwaldzka92.pl

Nota prawna

Opis oferty zawarty na stronie internetowej sporządzany jest na podstawie oględzin nieruchomości oraz informacji uzyskanych od właściciela, może podlegać aktualizacji i nie stanowi oferty określonej w art. 66 i następnych K.C.

Szczegóły oferty

Symbol oferty MAK-MS-28106
Powierzchnia 45,00 m²
Liczba pokoi 3
Piętro 2
Rodzaj budynku blok
Technologia budowlana silikat
Standard
Liczba pięter w budynku 4
Stan prawny Własność
Balkon jest
Rok budowy 2025
Ogrzewanie miejskie
Winda tak

Lokalizacja

Kalkulator kredytowy

PLN
%
Wysokość raty

Kalkulator kosztów

PLN
PLN
PLN
PLN
PLN
PLN
%
PLN
Podatek od czynności cywilno-prawnych
Taksa notarialna (opłata notarialna)
VAT od taksy notarialnej (opłaty notarialnej)
Wniosek do WKW
VAT od wniosku do WKW
Prowizja agencji nieruchomości
VAT od prowizji agencji nieruchomości
Wypisy aktu notarialnego - około
RAZEM (cena + opłaty)

Podobne oferty

oferta specjalna
mieszkanie na sprzedaż - Bydgoszcz, Bielawy

mieszkanie na sprzedaż

Bydgoszcz, Bielawy
2 pokoje 40,01 m2 12 800,00 zł/m2
oferta specjalna
mieszkanie na sprzedaż - Bydgoszcz, Bielawy

mieszkanie na sprzedaż

Bydgoszcz, Bielawy
2 pokoje 40,42 m2 12 900,00 zł/m2
bez prowizji
mieszkanie na sprzedaż - Bydgoszcz, Fordon, Bajka

mieszkanie na sprzedaż

Bydgoszcz, Fordon, Bajka
3 pokoje 45,94 m2 9 900,00 zł/m2
mieszkanie na sprzedaż - Bydgoszcz, Bartodzieje

mieszkanie na sprzedaż

Bydgoszcz, Bartodzieje
3 pokoje 56,29 m2 11 000,00 zł/m2

Napisz do nas

Proszę wypełnić to pole
Proszę wypełnić to pole
Proszę wypełnić to pole
Proszę wypełnić to pole
Trwa wysyłanie...

Ta strona wykorzystuje pliki cookies w celach statystycznych oraz w celu dostosowania naszych serwisów do indywidualnych potrzeb klientów. Zmiany ustawień dotyczących plików cookie można dokonać w dowolnej chwili modyfikując ustawienia przeglądarki. Korzystanie z tej strony bez zmian ustawień dotyczących cookies oznacza, że będą one zapisane w pamięci urządzenia.

rozumiem