Szukasz NOWEGO DEVELOPERSKIEGO mieszkania?
Zależy Ci na cichej okolicy i bliskości terenów zielonych?
Potrzebujesz bezpieczeństwa w postaci zamkniętego osiedla?
Jeśli TAK to ta oferta jest właśnie dla Ciebie !!
Budynek gotowy. Oddany do użytkowania
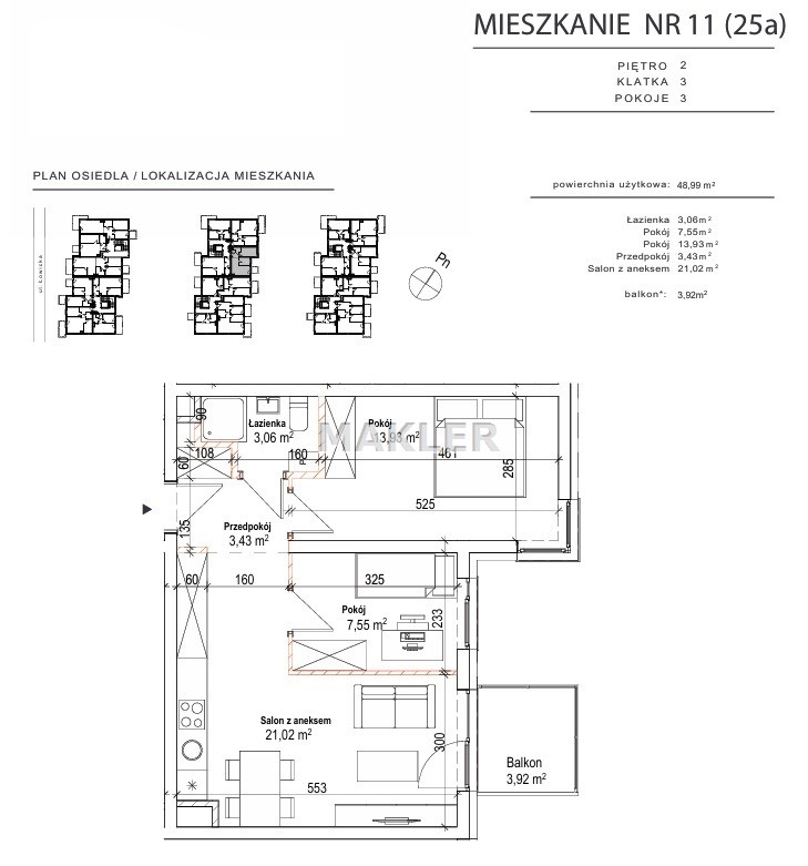
Przedstawiamy 2 pokojowe mieszkanie o powierzchni 48,99m2 na 2 piętrze kameralnego 2 piętrowego bloku z windą
Opis Inwestycji:
Nowo powstałe osiedle to nowoczesny i kameralny kompleks mieszkalny w Bydgoszczy. Inwestycja ta składa się z trzech, 2piętrowych budynków z lokalami o metrażach od 30 m² do 77 m². 68 nowoczesnych lokali, zaprojektowanych z myślą o różnorodności potrzeb przyszłych lokatorów.
Inwestycja posiada również podziemną przestrzeń parkingową, skomunikowaną z częścią mieszkalną, systemem wind, oraz zewnętrzne miejsca parkingowe do dyspozycji mieszkańców.
Zalety Inwestycji:
Nowoczesna architektura, uwzględniająca charakter krajobrazu i harmonizująca bryły budowli z otoczeniem, umożliwiając mieszkańcom osiedla funkcjonowanie w przestrzeni, w której wszystko jest na swoim miejscu, co sprzyja poczuciu spokoju.
Eksperckie rozwiązania z zakresu wykorzystanych materiałów i stosowanych technologii gwarantują maksymalny komfort użytkowania.
Zaaranżowane tereny zieleni wypełniają przestrzenie między budynkami mieszkalnymi, dając mieszkańcom możliwość relaksu na świeżym powietrzu i pomagając jednocześnie utrzymywać racjonalną gospodarkę cieplną.
Zapraszam na prezentację!!



