Bydgoszcz, Centrum

Mieszkanie na sprzedaż

Opis nieruchomości

Biuro Makler poleca: 

Szukasz NOWEGO DEVELOPERSKIEGO mieszkania?
Zależy Ci na cichej okolicy, bliskości terenów zielonych, oraz atrakcji Centrum miasta?


Jeśli TAK to ta oferta jest właśnie dla Ciebie !!


Kupujący nie płaci podatku PCC!! oraz prowizji do biura!!



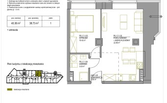
Przedstawiamy 2 pokojowe mieszkanie o powierzchni 38,73 m2 na 1 piętrze nowoczesnej kamienicy w centrum miasta.


Opis inwestycji



Bardzo atrakcyjna oferta mieszkania w stanie deweloperskim usytuowanego na 1 piętrze kamienicy, budynek w samym sercu miasta!!! Renomowana kamienica po generalnym remoncie z wymienionymi instalacjami gwarantuje komfort mieszkania przez wiele kolejnych lat. 

Lokalizacja najlepsza z najlepszych !!!! 
 

Mocne strony Projektu

- gotowy już latem 2024 roku,

- sufity do 4,5 m wysokości,

- 100% lokali mieści się w limicie kredytu 2% (ceny od 279.000 zł do 499.000 złotych),

- jedynie 2 piętra z 3 osobnymi wejściami,

- duże, panoramiczne okna w wybranych lokalach,

- teren bezpieczny - zamknięty i monitorowany,

- połączenie 2 Światów - funkcjonalność loftu w stylu paryskiej moderny.

Lokalizacja

W bezpośrednim sąsiedztwie budynku znajduje się 8 przystanków środków komunikacji miejskiej oraz najlepsze kawiarnie i restauracje:

- 1 minuta Drożdżowa Pychotka

- 1 minuta Dobra Pączkarnia

- 2 minuty do Bromberg Kaffee

- 3 minuty do Parku Kazimierza Wielkiego

- 4 minuty do Manekina

- 4 minuty do Staropolskiej

- 8 minut ulica Jatki

- 8 minut Bydgoska Starówka


Doskonała oferta zarówno jeśli szukasz mieszkania dla siebie lub pod inwestycje typu najem krótko bądź długoterminowy. Kilka minut spacerem do Wyspy Młyńskiej, restauracji, Opery, przystanku tramwajowego i wielu wielu innych atrakcji Starego Miasta wymienionych powyżej.

Wysoki standard wykonania i wykończenia sprawia, że budynek wyróżnia się na mapie naszego miasta spośród innych tego typu inwestycji. 

Kliknij " wyślij wiadomość " bądź zadzwoń aby dowiedzieć się więcej!


Zapraszam na prezentację!!



Pełny cennik wszystkich lokali i dodatkowych elementów znajduje się tutaj:
www.iqdevelopment.pl

Nota prawna

Opis oferty zawarty na stronie internetowej sporządzany jest na podstawie oględzin nieruchomości oraz informacji uzyskanych od właściciela, może podlegać aktualizacji i nie stanowi oferty określonej w art. 66 i następnych K.C.

Szczegóły oferty

Symbol oferty MAK-MS-29298
Powierzchnia 38,73 m²
Powierzchnia użytkowa 38,73 m²
Liczba pokoi 2
Piętro 1
Rodzaj budynku kamienica
Technologia budowlana cegła
Standard
Liczba pięter w budynku 2
Stan prawny Własność
Balkon brak
Rok budowy 2024
Ogrzewanie miejskie

Lokalizacja

Kalkulator kredytowy

PLN
%
Wysokość raty

Kalkulator kosztów

PLN
PLN
PLN
PLN
PLN
PLN
%
PLN
Podatek od czynności cywilno-prawnych
Taksa notarialna (opłata notarialna)
VAT od taksy notarialnej (opłaty notarialnej)
Wniosek do WKW
VAT od wniosku do WKW
Prowizja agencji nieruchomości
VAT od prowizji agencji nieruchomości
Wypisy aktu notarialnego - około
RAZEM (cena + opłaty)

Podobne oferty

oferta specjalna
mieszkanie na sprzedaż - Bydgoszcz, Bielawy

mieszkanie na sprzedaż

Bydgoszcz, Bielawy
2 pokoje 40,01 m2 12 800,00 zł/m2
oferta specjalna
mieszkanie na sprzedaż - Bydgoszcz, Bielawy

mieszkanie na sprzedaż

Bydgoszcz, Bielawy
2 pokoje 40,42 m2 12 900,00 zł/m2
bez prowizji
mieszkanie na sprzedaż - Bydgoszcz, Centrum

mieszkanie na sprzedaż

Bydgoszcz, Centrum
2 pokoje 33,57 m2 12 809,06 zł/m2
bez prowizji
mieszkanie na sprzedaż - Bydgoszcz, Centrum

mieszkanie na sprzedaż

Bydgoszcz, Centrum
2 pokoje 40,06 m2 9 111,33 zł/m2

Napisz do nas

Proszę wypełnić to pole
Proszę wypełnić to pole
Proszę wypełnić to pole
Proszę wypełnić to pole
Trwa wysyłanie...

Ta strona wykorzystuje pliki cookies w celach statystycznych oraz w celu dostosowania naszych serwisów do indywidualnych potrzeb klientów. Zmiany ustawień dotyczących plików cookie można dokonać w dowolnej chwili modyfikując ustawienia przeglądarki. Korzystanie z tej strony bez zmian ustawień dotyczących cookies oznacza, że będą one zapisane w pamięci urządzenia.

rozumiem