Nowa inwestycja w bliskości Centrum miasta to jedyna w swoim rodzaju propozycja na mapie Bydgoszczy. Nowoczesny 3 piętrowy budynek zrealizowany zostanie w wysokim standardzie budowlanym.
Niewątpliwym udogodnieniem, wyróżniającym budynek wśród bydgoskich inwestycji mieszkaniowych, jest jego bardzo dobra lokalizacja. Bliskość Centrum miasta jest na wyciągnięcie ręki
Nowa inwestycja to nie tylko nowoczesna architektura. Budynek wypełniony będzie licznymi udogodnieniami zapewniającymi komfort życia na najwyższym poziomie. Elegancka i ponadczasowa klatka schodowa, wykończona bardzo dobrymi materiałami będzie wizytówką budynku..
Na osiedlu z pewnością nie zbraknie także urozmaiconych gatunków roślin wpasowujących się w śródmiejski klimat otaczający inwestycję
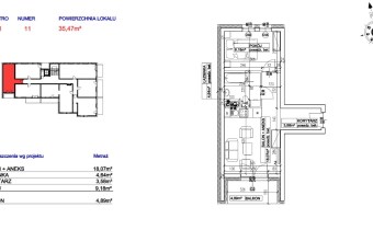
Zróżnicowane metraże i starannie przemyślane układy sprawiają, że znajdziesz tu swój wymarzony dom. Z myślą o komforcie mieszkańców zadbano o ograniczenie do minimum ruchu pojazdów na osiedlu, które zaraz po wjeździe skierują się do garaży podziemnych.
Lokalizacja:
Wyspa Młyńska - zaledwie 15 minut spacerem od planowanej inwestycji znajduje się malownicza Wyspa Młyńska. To idealne miejsce na relaksujący spacer wśród zieleni, piknik z przyjaciółmi lub spokojny wypoczynek nad wodą.
Stare Miasto - w ciągu 20 minut pieszo dotrzesz do tętniącego życiem Starego Miasta, gdzie czeka na Ciebie bogata oferta kulturalna, restauracje, kawiarnie oraz zabytkowe budowle, takie jak Katedra Bydgoska czy słynne Spichrze nad Brdą.
Opera Nova - miłośnicy sztuki docenią bliskość Opery Nova, do której dotrzesz w zaledwie 15 minut. To doskonałe miejsce, aby cieszyć się spektaklami operowymi, baletowymi oraz koncertami w wyjątkowej atmosferze.
Zapraszam na prezentację!!



