Bydgoszcz, Bartodzieje

Mieszkanie na sprzedaż

Opis nieruchomości

Biuro Makler poleca: 

Szukasz NOWEGO DEVELOPERSKIEGO mieszkania w świetnej lokalizacji?
Zależy Ci na cichej okolicy i bliskości terenów zielonych?
Potrzebujesz bezpieczeństwa w postaci zamkniętego osiedla?

Jeśli TAK to ta oferta jest właśnie dla Ciebie !!


Kupujący nie płaci podatku PCC!! oraz prowizji do biura!!



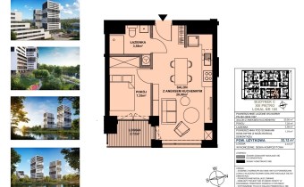
Przedstawiamy 2 pokojowe mieszkanie o powierzchni 32,12 m2 na 13 piętrze w bloku z pięknym widokiem na panoramę miasta!!



Opis inwestycji:

 

Ta inwestycja to idealne miejsce dla wszystkich, którzy marzą o mieszkaniu w nowoczesnym, bezpiecznym i komfortowym miejscu, a jednocześnie chcą cieszyć się bliskością natury, nie rezygnując z uroków miasta. Inwestycja powstała w znakomitej lokalizacji - bezpośrednio nad Brdą, tuż obok kompleksu biurowców, w pobliżu Ronda Fordońskiego. Z tego miejsca dostaniemy się w każdy zakątek Bydgoszczy w bliskiej odległości, gdyż Rondo Fordońskie stało się komunikacyjnym sercem miasta.

Imponująca architektura, znakomity widok na panoramę Bydgoszczy i szereg udogodnień dla mieszkańców to główne atuty inwestycji. Projekt tworzą trzy spektakularne budynki: dwa szesnastopiętrowe apartamentowce oraz jeden niższy, siedmiopiętrowy, o unikalnej architekturze. Wyjątkowa forma każdego z budynków przypomina konstrukcję ułożoną z poprzesuwanych klocków. Wewnątrz osiedla w jednym z wież zaprojektowano bawialnię, dzięki czemu najmniejsi mieszkańcy osiedla w bezpieczny sposób będą mogli spędzać wolny czas.  

Znakomita lokalizacja bezpośrednio nad Brdą, tuż obok największych centrów biznesowych w mieście sprawia, iż osiedle to, to świetna okazja na lokatę kapitału. W pobliżu znajdziemy pełną infrastrukturę szkolną, handlową i medyczną 

W jednym z budynków zaplanowane zostały apartamenty typu aparthotel z myślą o przeznaczeniu na wynajem krótkoterminowy. Każdy z tych apartamentów wyposażony będzie w niewielki aneks kuchenny oraz łazienkę.

W Bydgoszczy panuje szczególnie sprzyjający klimat inwestycyjny. To właśnie to akademickie miasto znalazło się wśród 10 najlepszych europejskich celów podróży 2020 r. Bydgoszcz co roku ściąga wielu studentów i miłośników życia nad Brdą. Nic dziwnego, w końcu zajmuje drugie miejsce w Polsce pod względem ilości terenów zielonych.

Zapraszam na prezentację!!

Nota prawna

Opis oferty zawarty na stronie internetowej sporządzany jest na podstawie oględzin nieruchomości oraz informacji uzyskanych od właściciela, może podlegać aktualizacji i nie stanowi oferty określonej w art. 66 i następnych K.C.

Szczegóły oferty

Symbol oferty MAK-MS-27492
Powierzchnia 32,12 m²
Powierzchnia użytkowa 32,12 m²
Liczba pokoi 2
Piętro 13
Rodzaj budynku blok
Technologia budowlana silikat
Standard
Liczba pięter w budynku 16
Stan prawny Własność
Balkon jest
Rok budowy 2023
Ogrzewanie miejskie
Winda tak

Lokalizacja

Kalkulator kredytowy

PLN
%
Wysokość raty

Kalkulator kosztów

PLN
PLN
PLN
PLN
PLN
PLN
%
PLN
Podatek od czynności cywilno-prawnych
Taksa notarialna (opłata notarialna)
VAT od taksy notarialnej (opłaty notarialnej)
Wniosek do WKW
VAT od wniosku do WKW
Prowizja agencji nieruchomości
VAT od prowizji agencji nieruchomości
Wypisy aktu notarialnego - około
RAZEM (cena + opłaty)

Podobne oferty

oferta specjalna
mieszkanie na sprzedaż - Bydgoszcz, Bielawy

mieszkanie na sprzedaż

Bydgoszcz, Bielawy
2 pokoje 40,01 m2 12 800,00 zł/m2
bez prowizji
mieszkanie na sprzedaż - Bydgoszcz, Wyżyny

mieszkanie na sprzedaż

Bydgoszcz, Wyżyny
2 pokoje 38,92 m2 11 300,00 zł/m2
oferta specjalna
mieszkanie na sprzedaż - Bydgoszcz, Bielawy

mieszkanie na sprzedaż

Bydgoszcz, Bielawy
2 pokoje 40,42 m2 12 900,00 zł/m2
oferta specjalna
mieszkanie na sprzedaż - Bydgoszcz, Bielawy

mieszkanie na sprzedaż

Bydgoszcz, Bielawy
1 pokój 25,39 m2 13 900,00 zł/m2

Napisz do nas

Proszę wypełnić to pole
Proszę wypełnić to pole
Proszę wypełnić to pole
Proszę wypełnić to pole
Trwa wysyłanie...

Ta strona wykorzystuje pliki cookies w celach statystycznych oraz w celu dostosowania naszych serwisów do indywidualnych potrzeb klientów. Zmiany ustawień dotyczących plików cookie można dokonać w dowolnej chwili modyfikując ustawienia przeglądarki. Korzystanie z tej strony bez zmian ustawień dotyczących cookies oznacza, że będą one zapisane w pamięci urządzenia.

rozumiem