Bydgoszcz, Fordon, Akademickie

Mieszkanie na sprzedaż

Opis nieruchomości

Biuro Makler poleca:


Szukasz NOWEGO DEVELOPERSKIEGO mieszkania?

Zależy Ci na cichej, spokojnej okolicy, a jednocześnie z dostępem do Centrum miasta?

Potrzebujesz bezpieczeństwa w postaci zamkniętego osiedla?


Jeśli TAK to ta oferta jest właśnie dla Ciebie !!


Kupujący nie płaci podatku PCC!! oraz prowizji do biura!!

 

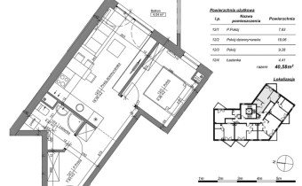
Przedstawiamy 2 pokojowe, mieszkanie o powierzchni 41,68m2 na 2 piętrze nowoczesnego bloku z windą!!

 

Opis Inwestycji


Nowo powstająca inwestycja w Centrum dzielnicy Fordon  - CUBIC!!

Przy zbiegu ulic Igrzyskowej i Akademickiej w Bydgoszczy powstaje nowa inwestycja mieszkaniowa o nazwie Cubic. Wielorodzinny nowoczesny budynek składający się z 25 lokali mieszkalnych oraz parterowych lokali usługowych. 

Inwestycja Cubic, która powstaje w Centrum dzielnicy Fordon to idealna propozycja dla osób, które szukają mieszkania w dobrym metrażu i w doskonałej lokalizacji świetnie skomunikowanej z pozostałą częścią miasta. Otaczająca inwestycję zieleń nastraja do spacerów, a bezpośrednia bliskość bliskość infrastruktury handlowej pozwala na wygodę i komfort w codziennym życiu.
W okolicy znajduje się również szkoła podstawowa, przedszkole oraz wiele punktów handlowych i usługowych, czyli wszystko czego potrzeba - w jednym miejscu.  Elegancka, awangardowa bryła budynku dużymi przeszkleniami nadaje inwestycji nowoczesności i przykuwa uwagę. Ogrodzony teren z przestrzenią do zabawy dla dzieci oraz prywatnym parkingiem wpisuje się w aktualne oczekiwania wymagających klientów. Winda umiejscowiona na samym środku budynku sprawi, że przemieszczanie się po nim będzie jeszcze przyjemniejsze. Budynek stanowi bardzo ciekawą ofertę inwestycyjną ze względu na bliskość kampusu UTP oraz świetne połączenie tramwajowe z miastem


Osiedle oddane zostanie do użytku w Październiku 2024


Do mieszkania obowiązkowy zakup komórki za 11000zł


Propozycja ta łączy ze sobą wiele aspektów które sprawią, że mieszkanie tam będzie przyjemnością a dodatkowo otoczony zielenią teren będzie idealny do wypoczynku z rodziną.


Zapraszam na prezentację!!

Nota prawna

Opis oferty zawarty na stronie internetowej sporządzany jest na podstawie oględzin nieruchomości oraz informacji uzyskanych od właściciela, może podlegać aktualizacji i nie stanowi oferty określonej w art. 66 i następnych K.C.

Szczegóły oferty

Symbol oferty MAK-MS-28927
Powierzchnia 41,98 m²
Powierzchnia użytkowa 41,98 m²
Liczba pokoi 2
Piętro 2
Rodzaj budynku blok
Technologia budowlana silikat
Standard
Liczba pięter w budynku 4
Stan prawny Własność
Balkon jest
Rok budowy 2024
Ogrzewanie miejskie
Winda tak

Lokalizacja

Kalkulator kredytowy

PLN
%
Wysokość raty

Kalkulator kosztów

PLN
PLN
PLN
PLN
PLN
PLN
%
PLN
Podatek od czynności cywilno-prawnych
Taksa notarialna (opłata notarialna)
VAT od taksy notarialnej (opłaty notarialnej)
Wniosek do WKW
VAT od wniosku do WKW
Prowizja agencji nieruchomości
VAT od prowizji agencji nieruchomości
Wypisy aktu notarialnego - około
RAZEM (cena + opłaty)

Podobne oferty

bez prowizji
mieszkanie na sprzedaż - Bydgoszcz, Centrum

mieszkanie na sprzedaż

Bydgoszcz, Centrum
2 pokoje 38,13 m2 8 649,36 zł/m2
bez prowizji
mieszkanie na sprzedaż - Bydgoszcz, Centrum

mieszkanie na sprzedaż

Bydgoszcz, Centrum
2 pokoje 30,26 m2 9 249,83 zł/m2
bez prowizji
mieszkanie na sprzedaż - Bydgoszcz, Centrum

mieszkanie na sprzedaż

Bydgoszcz, Centrum
2 pokoje 38,80 m2 8 698,45 zł/m2
bez prowizji
mieszkanie na sprzedaż - Bydgoszcz, Centrum

mieszkanie na sprzedaż

Bydgoszcz, Centrum
2 pokoje 33,57 m2 10 262,14 zł/m2

Napisz do nas

Proszę wypełnić to pole
Proszę wypełnić to pole
Proszę wypełnić to pole
Proszę wypełnić to pole
Trwa wysyłanie...

Ta strona wykorzystuje pliki cookies w celach statystycznych oraz w celu dostosowania naszych serwisów do indywidualnych potrzeb klientów. Zmiany ustawień dotyczących plików cookie można dokonać w dowolnej chwili modyfikując ustawienia przeglądarki. Korzystanie z tej strony bez zmian ustawień dotyczących cookies oznacza, że będą one zapisane w pamięci urządzenia.

rozumiem