Osielsko, Niemcz

Mieszkanie na sprzedaż

Opis nieruchomości

Biuro Makler poleca: 

Szukasz NOWEGO DEVELOPERSKIEGO domu?
Zależy Ci na cichej okolicy, oraz bliskości terenów zielonych?
Potrzebujesz bezpieczeństwa w postaci zamkniętego osiedla, oraz pełnej infrastruktury wokół?

Jeśli TAK to ta oferta jest właśnie dla Ciebie !!


Kupujący nie płaci podatku PCC!! oraz prowizji do biura!!



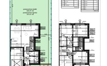
Przedstawiamy 4 pokojowy dom w zabudowie bliźniaczej o powierzchni 138,12 m2 z działką o powierzchni 323,47m2


Budynek oddany do użytkowania!! Nic tylko wykańczać i mieszkać!!




Opis inwestycji:


Zacznij OD NOWA. Porzuć miejski zgiełk. Zamieszkaj modnie, wygodnie i bezpiecznie. Zapuść korzenie OD NOWA.
W ODNOWIE liczy się efekt. Dlatego naciesz oko detalami: nowoczesne wykończenia, perfekcyjne rozplanowanie przestrzeni, przestronne wnętrza. Nic tylko zaplanować życie OD NOWA.
Zobacz Niemcz OD NOWA, naszymi oczami. Patrzysz na kolonię komfortowych domów w zabudowie szeregowej. Znajdź tu przestrzeń dla siebie. Poszukaj jej OD NOWA.
Nie patrzysz na zwykłe osiedle. Nie jest to miejsce dla każdego. Dlaczego miałoby być dla Ciebie? Znajdź właściwą odpowiedź!
Budowa osiedla zamkniętego, w tym 12 budynków mieszkalnych jednorodzinnych, dwulokalowych i jednego budynku mieszkalnego, jednorodzinnego, wolnostojącego, wraz z niezbędną infrastrukturą techniczną dotyczy projektowanego osiedla zamkniętego złożonego z budynków mieszkalnych, jednorodzinnych dwulokalowych i budynku mieszkalnego jednorodzinnego wolnostojącego.

Co wyróżnia inwestycję:?
STANDARD - Liczy się ODNOWA, czyli spokój, cisza i komfort.
TERENY ZIELONE - Kojąca zieleń w zasięgu ręki.
PLAC ZABAW – Bezpieczna przestrzeń dla małych odkrywców.
MIEJSCA PARKINGOWE DLA GOŚCI – Zaproś znajomych. Niech zaparkują bezpiecznie.
MONITORING – Osiedle zamknięte i chronione przez trzecie oko.
DESIGN – Nowoczesność splata się z tradycją.

Bądź na tak. Poznaj atuty swojego nowego domu.
W domu poznasz komfort życia OD NOWA. Nie zmarzniesz zimą. Latem od podłogi poczujesz przyjemny chłód. Wszystko za sprawą pompy ciepła – nowoczesnego i ekologicznego rozwiązania grzewczego.
Wykorzystaj przestrzeń OD NOWA. Nadaj jej nowe znaczenie. Zadbaj o auto, napraw dziecku przebitą dętkę lub zrealizuj pasje majsterkowicza. Wykorzystaj do tego podjazd przed domem lub przestronny garaż.
Poznaj relaks na świeżym powietrzu OD NOWA. Rozsiądź się wygodnie w swoim ogrodzie.
Zamieszkaj w domku, ale pozostań w kontakcie z sąsiadami. Na swoim osiedlu zadbasz o relacje międzyludzkie OD NOWA.
Zaprojektuj swoją przestrzeń do życia OD NOWA. Dokładnie tak, jak zamarzysz.

Kliknij " wyślij wiadomość " bądź zadzwoń aby dowiedzieć się więcej!


Zapraszam na prezentację!!



Pełny cennik wszystkich lokali i dodatkowych elementów znajduje się tutaj:
www.urbanspace.com.pl

Nota prawna

Opis oferty zawarty na stronie internetowej sporządzany jest na podstawie oględzin nieruchomości oraz informacji uzyskanych od właściciela, może podlegać aktualizacji i nie stanowi oferty określonej w art. 66 i następnych K.C.

Szczegóły oferty

Symbol oferty MAK-MS-27795
Powierzchnia 138,21 m²
Powierzchnia użytkowa 138,21 m²
Liczba pokoi 4
Piętro parter
Rodzaj budynku bliźniak
Technologia budowlana silikat
Standard
Liczba pięter w budynku 2
Stan prawny Własność
Balkon jest
Rok budowy 2024
Ogrzewanie pompa ciepła

Lokalizacja

Kalkulator kredytowy

PLN
%
Wysokość raty

Kalkulator kosztów

PLN
PLN
PLN
PLN
PLN
PLN
%
PLN
Podatek od czynności cywilno-prawnych
Taksa notarialna (opłata notarialna)
VAT od taksy notarialnej (opłaty notarialnej)
Wniosek do WKW
VAT od wniosku do WKW
Prowizja agencji nieruchomości
VAT od prowizji agencji nieruchomości
Wypisy aktu notarialnego - około
RAZEM (cena + opłaty)

Podobne oferty

oferta specjalna
mieszkanie na sprzedaż - Osielsko, Niemcz

mieszkanie na sprzedaż

Osielsko, Niemcz
4 pokoje 129,00 m2 7 744,19 zł/m2
oferta specjalna
mieszkanie na sprzedaż - Osielsko, Niemcz

mieszkanie na sprzedaż

Osielsko, Niemcz
4 pokoje 109,00 m2 9 128,44 zł/m2
oferta specjalna
mieszkanie na sprzedaż - Osielsko, Niemcz

mieszkanie na sprzedaż

Osielsko, Niemcz
4 pokoje 94,90 m2 9 325,61 zł/m2
nowa oferta
mieszkanie na sprzedaż - Osielsko, Maksymilianowo

mieszkanie na sprzedaż

Osielsko, Maksymilianowo
4 pokoje 86,00 m2 9 279,07 zł/m2

Napisz do nas

Proszę wypełnić to pole
Proszę wypełnić to pole
Proszę wypełnić to pole
Proszę wypełnić to pole
Trwa wysyłanie...

Ta strona wykorzystuje pliki cookies w celach statystycznych oraz w celu dostosowania naszych serwisów do indywidualnych potrzeb klientów. Zmiany ustawień dotyczących plików cookie można dokonać w dowolnej chwili modyfikując ustawienia przeglądarki. Korzystanie z tej strony bez zmian ustawień dotyczących cookies oznacza, że będą one zapisane w pamięci urządzenia.

rozumiem