Bydgoszcz, Bartodzieje

Mieszkanie na sprzedaż

Opis nieruchomości

Biuro Makler poleca: 

Szukasz NOWEGO DEVELOPERSKIEGO mieszkania w świetnej lokalizacji?
Zależy Ci na cichej okolicy i bliskości terenów zielonych?
Potrzebujesz bezpieczeństwa w postaci zamkniętego osiedla?

Jeśli TAK to ta oferta jest właśnie dla Ciebie !!


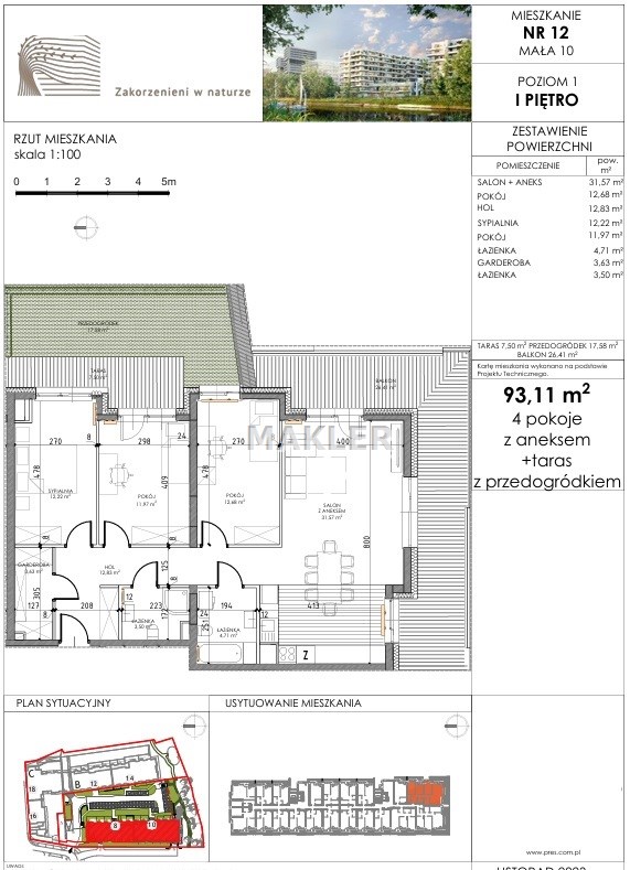
Przedstawiamy 4 pokojowe mieszkanie o powierzchni 93,11 m2 na 1 piętrze w bloku z ogródkiem i pięknym ogromnym tarasem z widokiem na tereny rekreacyjne i rzekę!!


Inwestycja będzie ukończona w Marcu 2026

Opis inwestycji:

 

Ta inwestycja to idealne miejsce dla wszystkich, którzy marzą o mieszkaniu w nowoczesnym, bezpiecznym i komfortowym miejscu, a jednocześnie chcą cieszyć się bliskością natury, nie rezygnując z uroków miasta. Inwestycja powstała w znakomitej lokalizacji - bezpośrednio nad Brdą, tuż obok kompleksu biurowców, w pobliżu Ronda Fordońskiego. Z tego miejsca dostaniemy się w każdy zakątek Bydgoszczy w bliskiej odległości, gdyż Rondo Fordońskie stało się komunikacyjnym sercem miasta.

Imponująca architektura, znakomity widok na panoramę Bydgoszczy i szereg udogodnień dla mieszkańców to główne atuty inwestycji. Projekt tworzą cztery spektakularne budynki. Wewnątrz osiedla w jednym z budynków zaprojektowano siłownię, pomieszczenie do wzajemnej integracji, wózkownię, oraz bawialnię dzięki czemu najmniejsi mieszkańcy osiedla w bezpieczny sposób będą mogli spędzać wolny czas.  

Znakomita lokalizacja bezpośrednio nad Brdą, tuż obok największych centrów biznesowych w mieście sprawia, iż osiedle to, to świetna okazja na lokatę kapitału. W pobliżu znajdziemy pełną infrastrukturę szkolną, handlową i medyczną 

W jednym z budynków zaplanowane zostały lokale użytkowe z myślą o przeznaczeniu na działalności gospodarcze. Dzięki czemu osiedle zyska miejsca handlowe i usługowe.

ATUTY INWESTYCJI:

Ekologia: 

-
Fotowoltaika na dachach zasilająca części wspólne
- Ekologiczne wykorzystanie wody deszczowej
- Porastająca zieleń na budynkach
- Stacja zmiękczania wody
- Stanowisko zewnętrzne do ładowania samochodów elektrycznych

Nowoczesność:

-
Wentylacja mechaniczna z nawiewnikami okiennymi
- Okna III szybowe
- Stanowisko zewnętrzne do ładowania samochodów elektrycznych, oraz możliwość doprowadzenia do każdego stanowiska instalacji
- Planowane przedszkole na terenie osiedla

Bezpieczeństwo:

-
Ogrodzenia ogródków do 1,5m
- Drzwi antywłamaniowe
- Rolety zewnętrzne w każdym mieszkaniu
- Wideodomofony
- Monitoring terenu zewnętrznego i hal garażowych

Rekreacja:

-
Siłownia wewnętrzna
- Obszerny teren rekreacyjny - ponad 40% zieleni na terenie osiedla
- Wspaniały widok na malowniczą rzekę Brdę
- Balkony, tarasy i ogródki do każdego mieszkania do 37m2

Świetna lokalizacja: wyjątkowe połączenia spacerowe do Starego Miasta i Wyspy Młyńskiej, tereny rekreacyjne (Bulwar nad Brdą i Park przy Balatonie), oraz sklepy i placówki edukacyjne w pobliżu. Wynajem mieszkań na Bartodziejach cieszy się ogromnym zainteresowaniem inwestorów.

Nowe Osiedle na Fordońskiej to nie tylko komfortowe mieszkania dla rodzin i singli, ale także doskonała okazja inwestycyjna.

W budynku C (Etap II) zaplanowano lokale usługowe na parterze, które stanowią atrakcyjną przestrzeń dla biznesu oraz dodatkowe udogodnienie dla mieszkańców. Dzięki tak wysokiemu standardowi wykończenia, mieszkanie na osiedlu Nowe Osiedle na Bartodziejach to doskonały wybór dla osób, które szukają komfortowego, bezpiecznego i nowoczesnego miejsca do życia w dynamicznie rozwijającym się mieście w woj. Kujawsko-Pomorskim.

Kliknij " wyślij wiadomość " bądź zadzwoń aby dowiedzieć się więcej!


Zapraszam na prezentację!!



Pełny cennik wszystkich lokali i dodatkowych elementów znajduje się tutaj:
www.pres.com.pl

Nota prawna

Opis oferty zawarty na stronie internetowej sporządzany jest na podstawie oględzin nieruchomości oraz informacji uzyskanych od właściciela, może podlegać aktualizacji i nie stanowi oferty określonej w art. 66 i następnych K.C.

Szczegóły oferty

Symbol oferty MAK-MS-27431
Powierzchnia 93,11 m²
Powierzchnia użytkowa 93,11 m²
Liczba pokoi 4
Piętro 1
Rodzaj budynku blok
Technologia budowlana silikat
Standard
Liczba pięter w budynku 7
Stan prawny Własność
Balkon jest
Rok budowy 2026
Ogrzewanie miejskie
Winda tak

Lokalizacja

Kalkulator kredytowy

PLN
%
Wysokość raty

Kalkulator kosztów

PLN
PLN
PLN
PLN
PLN
PLN
%
PLN
Podatek od czynności cywilno-prawnych
Taksa notarialna (opłata notarialna)
VAT od taksy notarialnej (opłaty notarialnej)
Wniosek do WKW
VAT od wniosku do WKW
Prowizja agencji nieruchomości
VAT od prowizji agencji nieruchomości
Wypisy aktu notarialnego - około
RAZEM (cena + opłaty)

Podobne oferty

bez prowizji
mieszkanie na sprzedaż - Bydgoszcz, Bartodzieje

mieszkanie na sprzedaż

Bydgoszcz, Bartodzieje
4 pokoje 80,61 m2 11 000,00 zł/m2
bez prowizji
mieszkanie na sprzedaż - Bydgoszcz, Bartodzieje

mieszkanie na sprzedaż

Bydgoszcz, Bartodzieje
4 pokoje 114,52 m2 11 100,00 zł/m2
oferta specjalna
mieszkanie na sprzedaż - Bydgoszcz, Bielawy

mieszkanie na sprzedaż

Bydgoszcz, Bielawy
4 pokoje 85,44 m2 12 200,00 zł/m2
oferta specjalna
mieszkanie na sprzedaż - Bydgoszcz, Bielawy

mieszkanie na sprzedaż

Bydgoszcz, Bielawy
4 pokoje 86,51 m2 11 800,00 zł/m2

Napisz do nas

Proszę wypełnić to pole
Proszę wypełnić to pole
Proszę wypełnić to pole
Proszę wypełnić to pole
Trwa wysyłanie...

Ta strona wykorzystuje pliki cookies w celach statystycznych oraz w celu dostosowania naszych serwisów do indywidualnych potrzeb klientów. Zmiany ustawień dotyczących plików cookie można dokonać w dowolnej chwili modyfikując ustawienia przeglądarki. Korzystanie z tej strony bez zmian ustawień dotyczących cookies oznacza, że będą one zapisane w pamięci urządzenia.

rozumiem