Bydgoszcz, Śródmieście

Mieszkanie na sprzedaż

Opis nieruchomości

Biuro Makler Nieruchomości serdecznie zaprasza do zapoznania się z wyjątkową ofertą przestronnego, funkcjonalnego apartamentu 4-pokojowego z tarasem i balkonem, położonego na prestiżowym osiedlu Urzecze w Bydgoszczy.

Nieruchomość o powierzchni 90 m² znajduje się w nowoczesnym budynku z 2024 roku i wyróżnia się niezwykle atrakcyjnym położeniem – z bezpośrednim widokiem na rzekę Brdę oraz otaczającą zieleń.

Mieszkanie jest w stanie deweloperskim, co daje przyszłemu właścicielowi pełną swobodę aranżacji i możliwość stworzenia wnętrza idealnie dopasowanego do własnych potrzeb.

Duże przeszklenia na całej długości mieszkania zapewniają doskonałe doświetlenie oraz wyjątkowe walory widokowe, a zastosowane drzwi oraz okna antywłamaniowe podnoszą poziom bezpieczeństwa i komfortu przyszłych mieszkańców.

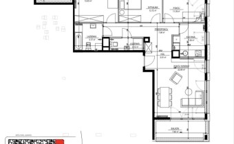
UKŁAD POMIESZCZEŃ:

  • przestronny salon z wyjściem na taras
  • oddzielna kuchnia
  • sypialnia z wyjściem na balkon
  • dwa dodatkowe pokoje
  • łazienka główna
  • druga łazienka / WC
  • funkcjonalny przedpokój
  • taras + balkon

Układ mieszkania zapewnia komfortowy podział na strefę dzienną i prywatną.

STANDARD:

Mieszkanie w stanie deweloperskim – idealne pod własną aranżację.

  • rok budowy: 2024
  • piętro: 2 / 4
  • winda: tak
  • ogrzewanie miejskie
  • certyfikat energetyczny: A
  • stolarka okienna i drzwiowa o podwyższonej odporności antywłamaniowej

OSIEDLE I UDOGODNIENIA:

Osiedle Urzecze to nowoczesna, kameralna inwestycja o podwyższonym standardzie:

  • teren zamknięty i monitorowany
  • kontrolowany dostęp do budynku
  • bezpośredni dostęp do rzeki Brdy
  • eleganckie klatki schodowe (system zapachowy i muzyczny)
  • dostęp do budynku przez aplikację mobilną
  • spokojna, prestiżowa okolica

DODATKOWE ATUTY:

  • komórka lokatorska na piętrze
  • możliwość zakupu 2 miejsc w hali garażowej
  • do jednego miejsca przynależy komórka lokatorska

Cena miejsca parkingowego: 75 000 zł / szt. (osobna księga wieczysta)

LOKALIZACJA:

Świetna lokalizacja łącząca ciszę i bliskość natury z dostępem do centrum miasta:

  • Wyspa Młyńska – ok. 5 min spacerem
  • Stare Miasto – ok. 5 min
  • Opera Nova – ok. 5 min
  • basen – ok. 3 min
  • centrum handlowe Rondo – ok. 5 min

W bezpośrednim sąsiedztwie nowoczesne inwestycje: Nordic oraz Nowy Port.

NAJWAŻNIEJSZE ATUTY:

  • 4 niezależne pokoje
  • widok na rzekę Brdę
  • taras + balkon
  • bardzo dobre doświetlenie
  • 2 łazienki
  • stan deweloperski – możliwość aranżacji
  • prestiżowe osiedle
  • wysoki standard budynku
  • podwyższony poziom bezpieczeństwa

INFORMACJE DODATKOWE:

  • powierzchnia: 90 m²
  • liczba pokoi: 4
  • piętro: 2/4
  • czynsz: ok. 750 zł
  • forma własności: pełna własność
  • dostępne od: 12.06.2025

PODSUMOWANIE:

To idealna propozycja dla osób poszukujących przestronnego apartamentu w wysokim standardzie, w jednej z najbardziej wyjątkowych lokalizacji w Bydgoszczy – zarówno do zamieszkania, jak i jako inwestycja.

Zapraszam serdecznie po więcej informacji oraz na prezentację nieruchomości.

„Niniejsza oferta ma charakter informacyjny i nie stanowi oferty handlowej w rozumieniu art. 66 §1 Kodeksu Cywilnego. Dokładamy wszelkich starań, aby informacje zawarte w ogłoszeniu były aktualne i rzetelne.”

Nota prawna

Opis oferty zawarty na stronie internetowej sporządzany jest na podstawie oględzin nieruchomości oraz informacji uzyskanych od właściciela, może podlegać aktualizacji i nie stanowi oferty określonej w art. 66 i następnych K.C.

Szczegóły oferty

Symbol oferty MAK-MS-29474
Powierzchnia 90,00 m²
Powierzchnia balkonów/tarasów 12,00 m²
Liczba pokoi 3
Piętro 2
Rodzaj budynku blok
Technologia budowlana silikat
Liczba pięter w budynku 4
Stan prawny Własność
Mies. czynsz admin. 750 PLN
Instalacje nowe
Balkon jest
Liczba balkonów 1
Liczba tarasów 1
Rok budowy 2024
Ogrzewanie miejskie
Winda tak
Tarasy taras

Lokalizacja

Kalkulator kredytowy

PLN
%
Wysokość raty

Kalkulator kosztów

PLN
PLN
PLN
PLN
PLN
PLN
%
PLN
Podatek od czynności cywilno-prawnych
Taksa notarialna (opłata notarialna)
VAT od taksy notarialnej (opłaty notarialnej)
Wniosek do WKW
VAT od wniosku do WKW
Prowizja agencji nieruchomości
VAT od prowizji agencji nieruchomości
Wypisy aktu notarialnego - około
RAZEM (cena + opłaty)

Podobne oferty

oferta specjalna
mieszkanie na sprzedaż - Bydgoszcz, Bielawy

mieszkanie na sprzedaż

Bydgoszcz, Bielawy
4 pokoje 85,44 m2 12 200,00 zł/m2
oferta specjalna
mieszkanie na sprzedaż - Bydgoszcz, Bielawy

mieszkanie na sprzedaż

Bydgoszcz, Bielawy
5 pokoi 81,07 m2 11 500,00 zł/m2
bez prowizji
mieszkanie na sprzedaż - Bydgoszcz, Bielawy

mieszkanie na sprzedaż

Bydgoszcz, Bielawy
3 pokoje 55,60 m2 13 888,49 zł/m2
bez prowizji
mieszkanie na sprzedaż - Bydgoszcz, Bielawy

mieszkanie na sprzedaż

Bydgoszcz, Bielawy
4 pokoje 95,14 m2 13 622,03 zł/m2

Napisz do nas

Proszę wypełnić to pole
Proszę wypełnić to pole
Proszę wypełnić to pole
Proszę wypełnić to pole
Trwa wysyłanie...

Ta strona wykorzystuje pliki cookies w celach statystycznych oraz w celu dostosowania naszych serwisów do indywidualnych potrzeb klientów. Zmiany ustawień dotyczących plików cookie można dokonać w dowolnej chwili modyfikując ustawienia przeglądarki. Korzystanie z tej strony bez zmian ustawień dotyczących cookies oznacza, że będą one zapisane w pamięci urządzenia.

rozumiem