Opis nieruchomości
Biuro Makler poleca:
Szukasz NOWEGO DEVELOPERSKIEGO mieszkania?
Zależy Ci na cichej okolicy, bliskości terenów zielonych, oraz bliskości pięknego nowego kampusu Akademii Muzycznej?
Potrzebujesz bezpieczeństwa w postaci zamkniętego osiedla?
Jeśli TAK to ta oferta jest właśnie dla Ciebie !!
Kupujący nie płaci podatku PCC!! oraz prowizji do biura!!
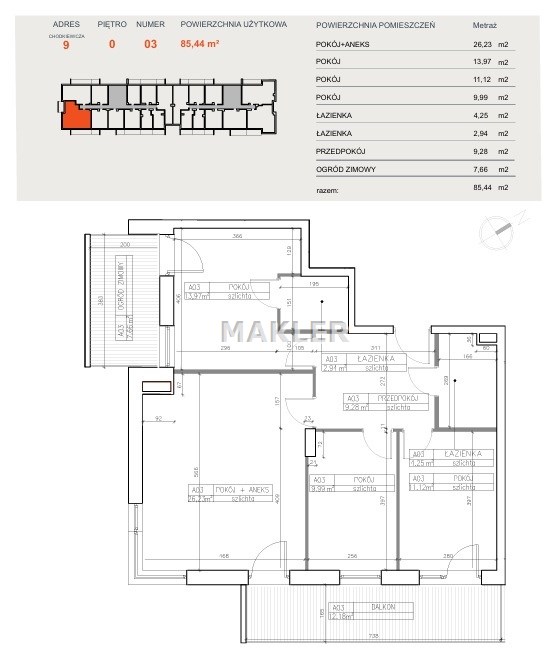
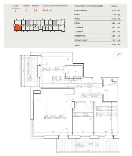
Przedstawiamy 4 pokojowe mieszkanie o powierzchni 85,90 m2 na parterze w bloku z cichą windą.
Opis inwestycji
Doskonała lokalizacja, centrum Bydgoszczy i adres, który ma znaczenie. Tylko
trzy budynki w wysokim standardzie na kameralnym osiedlu. W sąsiedztwie eleganckich, przedwojennych domów,
nowoczesnych apartamentów i
kampusu Akademii Muzycznej. Miejsce, w którym można korzystać ze wszystkich zalet zamieszkiwania w centrum miasta i jednocześnie cieszyć się zielenią, spokojem oraz niespiesznym tempem życia.
Osiedle które powstaje przy nowym kampusie Akademii Muzycznej w Bydgoszczy to 102 funkcjonalne,
klimatyzowane mieszkania i
przestronne apartamenty z balkonami, tarasami lub własnymi ogródkami w budynku A oraz 109 lokali mieszkalnych w budynku B.
Do dyspozycji mieszkańców podziemna hala garażowa z możliwością ładowania pojazdów elektrycznych, komórki lokatorskie, cichobieżne windy i zagospodarowany zielenią dziedziniec.
Budynek zostanie oddany do użytku w IV kwartale 2025
Kliknij " wyślij wiadomość " bądź zadzwoń aby dowiedzieć się więcej!
Zapraszam na prezentację!!
Pełny cennik wszystkich lokali i dodatkowych elementów znajduje się tutaj:
www.grupamoderator.pl
Nota prawna
Opis oferty zawarty na stronie internetowej sporządzany jest na podstawie oględzin nieruchomości oraz informacji uzyskanych od właściciela, może podlegać aktualizacji i nie stanowi oferty określonej w art. 66 i następnych K.C.