Bydgoszcz, Bielawy

Mieszkanie na sprzedaż

Opis nieruchomości

Biuro Makler poleca: 

Szukasz NOWEGO DEVELOPERSKIEGO mieszkania?
Zależy Ci na cichej okolicy, bliskości terenów zielonych, oraz bliskości pięknego nowego kampusu Akademii Muzycznej?
Potrzebujesz bezpieczeństwa w postaci zamkniętego osiedla?

Jeśli TAK to ta oferta jest właśnie dla Ciebie !!


Kupujący nie płaci podatku PCC!! oraz prowizji do biura!!



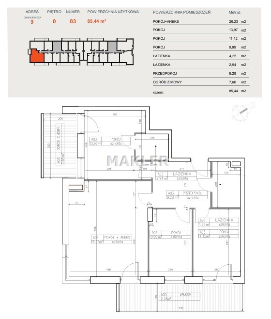
Przedstawiamy 4 pokojowe mieszkanie o powierzchni 85,90 m2 na parterze w bloku z cichą windą.


Opis inwestycji


Doskonała lokalizacja, centrum Bydgoszczy i adres, który ma znaczenie. Tylko trzy budynki w wysokim standardzie na kameralnym osiedlu. W sąsiedztwie eleganckich, przedwojennych domów, nowoczesnych apartamentów i kampusu Akademii Muzycznej. Miejsce, w którym można korzystać ze wszystkich zalet zamieszkiwania w centrum miasta i jednocześnie cieszyć się zielenią, spokojem oraz niespiesznym tempem życia.

Osiedle które powstaje przy nowym kampusie Akademii Muzycznej w Bydgoszczy 
to 102 funkcjonalne, klimatyzowane mieszkania i przestronne apartamenty z balkonami, tarasami lub własnymi ogródkami w budynku A oraz 109 lokali mieszkalnych w budynku B.

Do dyspozycji mieszkańców podziemna hala garażowa z możliwością ładowania pojazdów elektrycznych, komórki lokatorskie, cichobieżne windy i zagospodarowany zielenią dziedziniec.

Budynek zostanie oddany do użytku w IV kwartale 2025


Kliknij " wyślij wiadomość " bądź zadzwoń aby dowiedzieć się więcej!


Zapraszam na prezentację!!



Pełny cennik wszystkich lokali i dodatkowych elementów znajduje się tutaj:
www.grupamoderator.pl

Nota prawna

Opis oferty zawarty na stronie internetowej sporządzany jest na podstawie oględzin nieruchomości oraz informacji uzyskanych od właściciela, może podlegać aktualizacji i nie stanowi oferty określonej w art. 66 i następnych K.C.

Szczegóły oferty

Symbol oferty MAK-MS-27460
Powierzchnia 85,90 m²
Powierzchnia użytkowa 85,90 m²
Liczba pokoi 4
Piętro parter
Rodzaj budynku blok
Technologia budowlana silikat
Standard
Liczba pięter w budynku 4
Stan prawny Własność
Balkon jest
Rok budowy 2025
Ogrzewanie miejskie
Winda tak

Lokalizacja

Kalkulator kredytowy

PLN
%
Wysokość raty

Kalkulator kosztów

PLN
PLN
PLN
PLN
PLN
PLN
%
PLN
Podatek od czynności cywilno-prawnych
Taksa notarialna (opłata notarialna)
VAT od taksy notarialnej (opłaty notarialnej)
Wniosek do WKW
VAT od wniosku do WKW
Prowizja agencji nieruchomości
VAT od prowizji agencji nieruchomości
Wypisy aktu notarialnego - około
RAZEM (cena + opłaty)

Podobne oferty

bez prowizji
mieszkanie na sprzedaż - Bydgoszcz, Bartodzieje

mieszkanie na sprzedaż

Bydgoszcz, Bartodzieje
4 pokoje 80,61 m2 11 000,00 zł/m2
bez prowizji
mieszkanie na sprzedaż - Bydgoszcz, Bartodzieje

mieszkanie na sprzedaż

Bydgoszcz, Bartodzieje
4 pokoje 114,52 m2 11 100,00 zł/m2
oferta specjalna
mieszkanie na sprzedaż - Bydgoszcz, Bielawy

mieszkanie na sprzedaż

Bydgoszcz, Bielawy
4 pokoje 85,44 m2 12 200,00 zł/m2
oferta specjalna
mieszkanie na sprzedaż - Bydgoszcz, Bielawy

mieszkanie na sprzedaż

Bydgoszcz, Bielawy
4 pokoje 86,51 m2 11 800,00 zł/m2

Napisz do nas

Proszę wypełnić to pole
Proszę wypełnić to pole
Proszę wypełnić to pole
Proszę wypełnić to pole
Trwa wysyłanie...

Ta strona wykorzystuje pliki cookies w celach statystycznych oraz w celu dostosowania naszych serwisów do indywidualnych potrzeb klientów. Zmiany ustawień dotyczących plików cookie można dokonać w dowolnej chwili modyfikując ustawienia przeglądarki. Korzystanie z tej strony bez zmian ustawień dotyczących cookies oznacza, że będą one zapisane w pamięci urządzenia.

rozumiem