Nowa Wieś Wielka, Prądocin

Lokal na sprzedaż

Opis nieruchomości


Zapraszam do zapoznania się z nową ofertą lokali handlowo-usługowych na sprzedaż, mieszczących się na osiedlu "Cudne Chmielniki: w miejscowości Prądocin.
Nowoczesne osiedle składa się z 20 budynków wielorodzinnych.

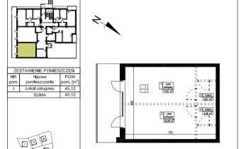
W budynku (3 -kondygnacyjnym) znajdują się  lokale w stanie deweloperskim o pow. od 45m2, do 58m2  z możliwością łączenia co daje  nam powierzchnie nawet 412m2 .
Lokale z przeznaczeniem na działalność handlową (np. żabka) , biurową, magazynową, usługową i inne.

W ofercie lokale z witryną i wejściem od parkingu oraz lokale z wejściem od klatki schodowej.
Możliwość dokupienia komórek lokatorskich oraz miejsc garażowych.
Budynki są wyposażone w windy dla niepełnosprawnych.

Cena lokalu w stanie deweloperskim 5500zł m2, netto.

 

Nota prawna

Opis oferty zawarty na stronie internetowej sporządzany jest na podstawie oględzin nieruchomości oraz informacji uzyskanych od właściciela, może podlegać aktualizacji i nie stanowi oferty określonej w art. 66 i następnych K.C.

Szczegóły oferty

Symbol oferty MAK-LS-28879
Powierzchnia 46,00 m²
Piętro parter
Rodzaj budynku blok
Liczba pięter w budynku 2
Stan lokalu deweloperski
Stan prawny Własność
Okna PCV
Rok budowy 2024
Rodzaj lokalu jednopoziomowy
Przeznaczenie lokalu magazynowy, usługowy, biurowo - magazynowy, biurowy, gastronomia, handlowo-usługowy, handlowy, inny, użytkowy
Możliwość parkowania tak
Wejście od ulicy

Lokalizacja

Kalkulator kredytowy

PLN
%
Wysokość raty

Kalkulator kosztów

PLN
PLN
PLN
PLN
PLN
PLN
%
PLN
Podatek od czynności cywilno-prawnych
Taksa notarialna (opłata notarialna)
VAT od taksy notarialnej (opłaty notarialnej)
Wniosek do WKW
VAT od wniosku do WKW
Prowizja agencji nieruchomości
VAT od prowizji agencji nieruchomości
Wypisy aktu notarialnego - około
RAZEM (cena + opłaty)

Napisz do nas

Proszę wypełnić to pole
Proszę wypełnić to pole
Proszę wypełnić to pole
Proszę wypełnić to pole
Trwa wysyłanie...

Ta strona wykorzystuje pliki cookies w celach statystycznych oraz w celu dostosowania naszych serwisów do indywidualnych potrzeb klientów. Zmiany ustawień dotyczących plików cookie można dokonać w dowolnej chwili modyfikując ustawienia przeglądarki. Korzystanie z tej strony bez zmian ustawień dotyczących cookies oznacza, że będą one zapisane w pamięci urządzenia.

rozumiem