Białe Błota, Łochowo

Dom na sprzedaż

Opis nieruchomości

Szukasz NOWEGO DEVELOPERSKIEGO domu w zabudowie bliźniaczej w świetnej lokalizacji?
Zależy Ci na cichej okolicy i bliskości terenów zielonych?
Potrzebujesz bezpieczeństwa w postaci zamkniętego osiedla?

Jeśli TAK to ta oferta jest właśnie dla Ciebie !!


Kupujący nie płaci podatku PCC!! 



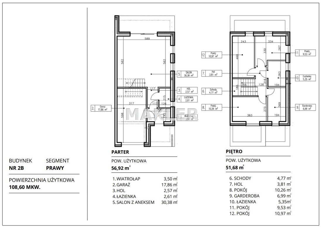
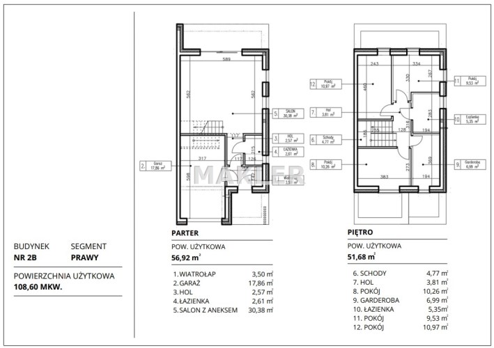
Przedstawiamy 5 pokojowy dom w zabudowie bliźniaczej o powierzchni 108,60 m2 z garażem w bryle budynku i działką o powierzchni 408m2

Zdjęcia wnętrza przedstawione w ogłoszeniu są zdjęciami z budynku pokazowego. Dom oddawany do użytkowania w stanie deweloperskim.


Opis inwestycji:


Osiedle powstające w miejscowości Łochowo to nowoczesne osiedle domów jednorodzinnych zlokalizowane w samym sercu natury. Zabudowa bliźniacza 40 domów o metrażach od 109 m2 do 140 m2 została zaprojektowana z myślą o zapewnieniu maksymalnego komfortu mieszkańców. Każdy dom charakteryzuje się przestronnością z dużymi oknami, z widokiem na przyrodę, prywatnymi ogródkami i wykończeniem najwyższej jakości.

Nowe osiedle to idealne miejsce dla tych, którzy cenią sobie kontakt z naturą, ale nie chcą rezygnować z miejskich udogodnień. Tuż obok domu znajdziesz malownicze ścieżki rowerowe, trasy spacerowe wzdłuż Kanału Noteckiego, miejsca idealne do spędzania czasu na łonie natury. Kompletna infrastruktura Łochowa - od sklepów spożywczych, po szkoły i przedszkola, zapewnia wygodę życia codziennego. A kiedy zechcesz odwiedzić centrum Bydgoszczy, droga ekspresowa S5 umożliwi Ci szybki dojazd w zaledwie 19 minut do centrum Bydgoszczy.

Ważne jest to, iż nowy DOM wita Cię gotowym ogrodem przy Twoim Domu. Bez oczekiwania, bez pracy – od pierwszego dnia Twoje miejsce na ziemi jest zielone i przytulne. Ciesz się swoją oazą spokoju od momentu przekroczenia progu domu.

STANDARD WYKOŃCZENIA:

Przy tworzeniu Osiedla  priorytetem stał się wysoki standard i nowoczesna architektura. Pragniemy stworzyć Osiedle, które nie będzie tylko miejscem zamieszkania, ale także stylem życia. Ucieknij z zatłoczonego i zakurzonego miasta i zamieszkaj między lasem a Kanałem Noteckim. Ciesz się zieloną okolicą, świeżym powietrzem jednocześnie nie rezygnując z bliskości miasta i wszystkich udogodnień potrzebnych na co dzień. W cenie mieszkania o podobnym metrażu możesz mieć swój własny, nowoczesny i energooszczędny dom na działce w rozmiarze między około 400 a 800  m2 w pięknej lokalizacji.

 

Technologia budowy

Już na wstępie nasze domy w zabudowie bliźniaczej wyróżnia usadowienie na płycie fundamentowej zamiast powszechnie wykonywanych ław fundamentowych. Zapewnia ona lepszą nośność, pozwala lepiej zabezpieczyć budynek przed nierównym osiadaniem a także znacznie wpływa na trwałość konstrukcji i energooszczędność budynku przepuszczając mniej ciepła na zewnątrz. Grubość płyty to 25 cm a wykonana została w technologii Agilia Fibro.

Domy wykonane są w technologii murowanej z bloczków silikatowych o grubości 24 cm oraz warstwy termoizolacji ze styropianu o grubości 20 cm, od wewnątrz ściany zostały wykończone tynkiem gipsowym. Bliźniaki oddzielają osobne ściany z dylatacją, co wpływa na lepszą akustykę i komfort niż w domach w zabudowie bezpośrednio łączonej lub dzielącej wspólną ścianę.  

Ściany wewnętrzne działowe Twojego domu są murowane z bloczków gazobetonowych,  wykończone tynkiem gipsowym. Możesz być pewny, że ściany z bloczków gazobetonowych będą trwałe i wytrzymałe przez wiele lat.

Do konstrukcji Twojego domu wybraliśmy zastosowanie stropu filigran. Strop filigran charakteryzuje się dużą wytrzymałością, dzięki czemu może wytrzymać większe obciążenia niż popularnie stosowana teriva. Uginanie się pojedynczych elementów stropu powoduje występowanie widocznych zarysowań na styku ścian nośnych ze stropem. W związku z tym, że teriva ma więcej mniejszych elementów takich miejsc jest o wiele więcej co powoduje wzrost prawdopodobieństwa ich wystąpienia. Dlatego zdecydowaliśmy się na strop filigran.

 

Ogrzewanie domu

Dom ogrzewany jest gazem z sieci. Wszystkie budynki w standardzie wyposażone są w nowoczesne, ekologiczne w pełni zautomatyzowane  kotły gazowe marki Saunier Duval Isotwin  Condens 24/30, dwufunkcyjne, które w połączeniu z ogrzewaniem podłogowym pozwalają na uzyskanie wysokiej sprawności energetycznej przy jednoczesnym dbaniu o aspekt ekonomiczny.

Na dachu Twojego domu zamontowana jest instalacja fotowoltaiczna o mocy 5-6 kW. Dzięki panelom słonecznym możesz produkować własną energię elektryczną, co pozwoli Ci zmniejszyć rachunki za prąd.  Moc ta dobrana jest według obliczeń i w zupełności wystarczy na zapewnienie odpowiedniej ilości prądu potrzebnego do normalnego użytkowania.

 

System wentylacji

Dodatkowo każdy dom wyposażony jest w system wentylacji mechanicznej czyli rekuperację. Rekuperacja w domu to nie tylko nowoczesne rozwiązanie i odzysk ciepłego powietrza, ale także ogromna korzyść dla Twojego komfortu i zdrowia. Dzięki systemowi rekuperacji możesz cieszyć się świeżym i czystym powietrzem w swoim domu, bez konieczności otwierania okien. Dodatkowo, rekuperacja pomaga w utrzymaniu odpowiedniej wilgotności powietrza oraz eliminuje alergeny i zanieczyszczenia, co korzystnie wpływa na Twoje zdrowie i samopoczucie.

 

Stolarka okienna

Wybór stolarki okiennej to trzyszybowe okna o profilu 5-cio komorowym w kolorze antracyt od zewnątrz i białe wewnątrz. Wszystkie okna wyposażone zostały w rolety zewnętrzne w kolorze stolarki przygotowane do ewentualnego sterowania zdalnego. Oprócz tego każde okno w standardzie wykończone jest parapetem zewnętrznym jak i wewnętrznym. Drzwi zewnętrzne są ocieplone z wkładką antywłamaniową, do tego w standardzie brama garażowa PCV segmentowa z otworami wentylacyjnymi sterowana na pilota.

 

Podjazd

Podjazd do Twojego domu wykonany jest w całości z kostki brukowej w kolorze współgrającym z nowoczesnym charakterem domu. Natomiast taras (rozmiar 11-12 m2) wykonany będzie z płyt tarasowych, dzięki temu będzie wyglądał elegancko i wpisze się w styl Twojego domu.

W standardzie nieruchomości jest również woda z sieci oraz bezodpływowy zbiornik na nieczystości ciekłe.

Zadbaliśmy również o zagospodarowanie ogródka tak, byś wprowadzając się już mógł cieszyć się zielenią za oknem. W standardzie jest trawa i nasadzenia a wszystko to ogrodzone panelami ocynkowanymi wysokości 120 cm.

 

Systemy i udogodnienia

Przygotowaliśmy również instalacje pod alarm, 4 kamery zewnętrzne, klimatyzację na parterze oraz pod rolety zewnętrzne. W każdym pokoju znajduje się instalacja sieciowa i telewizyjna plus antena na dachu pod telewizję naziemną i satelitarną.

Twój dom wyposażyliśmy również we włączniki i gniazdka firmy Legrand, które cechuje wysoka jakość, innowacyjność i design. Produkty Legrand są nie tylko funkcjonalne, ale także estetyczne, co sprawia, że doskonale wpasowują się w różne style wnętrz, od klasycznych po nowoczesne. Dodatkowo, włączniki i gniazdka Legrand są projektowane z myślą o bezpieczeństwie użytkowników, spełniając najwyższe standardy jakości i normy bezpieczeństwa.

Kolejnym udogodnieniem jakie wybraliśmy ze względu na jakość jest domofon firmy Hikvision. To zaawansowane rozwiązanie do monitorowania i kontroli dostępu do budynków. Dzięki wysokiej jakości kamery i systemowi audio, domofon Hikvision umożliwia komunikację wideo i głosową z osobami stojącymi przed drzwiami. Dodatkowo, domofon ten może być zintegrowany z systemami monitoringu, co pozwala na pełną kontrolę nad bezpieczeństwem wokół domu.

W obu łazienkach wykonaliśmy konstrukcję do zabudowy lekkiej Tece.

Zadbaliśmy również o oświetlenie zewnętrzne budynku. Nowoczesne, energooszczędne oraz w pełni dopasowane pod względem wizualnym do elewacji budynku zapewni dogodny dostęp po zmroku zarówno od frontu budynku jak i tarasu.

ZAPRASZAM NA PREZENTACJĘ!!

Nota prawna

Opis oferty zawarty na stronie internetowej sporządzany jest na podstawie oględzin nieruchomości oraz informacji uzyskanych od właściciela, może podlegać aktualizacji i nie stanowi oferty określonej w art. 66 i następnych K.C.

Szczegóły oferty

Symbol oferty MAK-DS-28529
Powierzchnia 108,60 m²
Powierzchnia użytkowa 108,60 m²
Powierzchnia działki 409 m²
Liczba pokoi 5
Rodzaj domu bliźniak
Standard
Rok budowy 2026
Ogrzewanie inne

Lokalizacja

Kalkulator kredytowy

PLN
%
Wysokość raty

Kalkulator kosztów

PLN
PLN
PLN
PLN
PLN
PLN
%
PLN
Podatek od czynności cywilno-prawnych
Taksa notarialna (opłata notarialna)
VAT od taksy notarialnej (opłaty notarialnej)
Wniosek do WKW
VAT od wniosku do WKW
Prowizja agencji nieruchomości
VAT od prowizji agencji nieruchomości
Wypisy aktu notarialnego - około
RAZEM (cena + opłaty)

Podobne oferty

rezerwacja
dom na sprzedaż - Białe Błota, Zielonka

dom na sprzedaż

Białe Błota, Zielonka
5 pokoi 131,00 m2 7 473,28 zł/m2
dom na sprzedaż - Białe Błota

dom na sprzedaż

Białe Błota
5 pokoi 215,50 m2 4 172,16 zł/m2
bez prowizji
dom na sprzedaż - Białe Błota, Ciele

dom na sprzedaż

Białe Błota, Ciele
5 pokoi 125,46 m2 6 974,33 zł/m2
oferta na wyłączność
dom na sprzedaż - Białe Błota, Drzewce

dom na sprzedaż

Białe Błota, Drzewce
4 pokoje 110,50 m2 7 647,06 zł/m2

Napisz do nas

Proszę wypełnić to pole
Proszę wypełnić to pole
Proszę wypełnić to pole
Proszę wypełnić to pole
Trwa wysyłanie...

Ta strona wykorzystuje pliki cookies w celach statystycznych oraz w celu dostosowania naszych serwisów do indywidualnych potrzeb klientów. Zmiany ustawień dotyczących plików cookie można dokonać w dowolnej chwili modyfikując ustawienia przeglądarki. Korzystanie z tej strony bez zmian ustawień dotyczących cookies oznacza, że będą one zapisane w pamięci urządzenia.

rozumiem