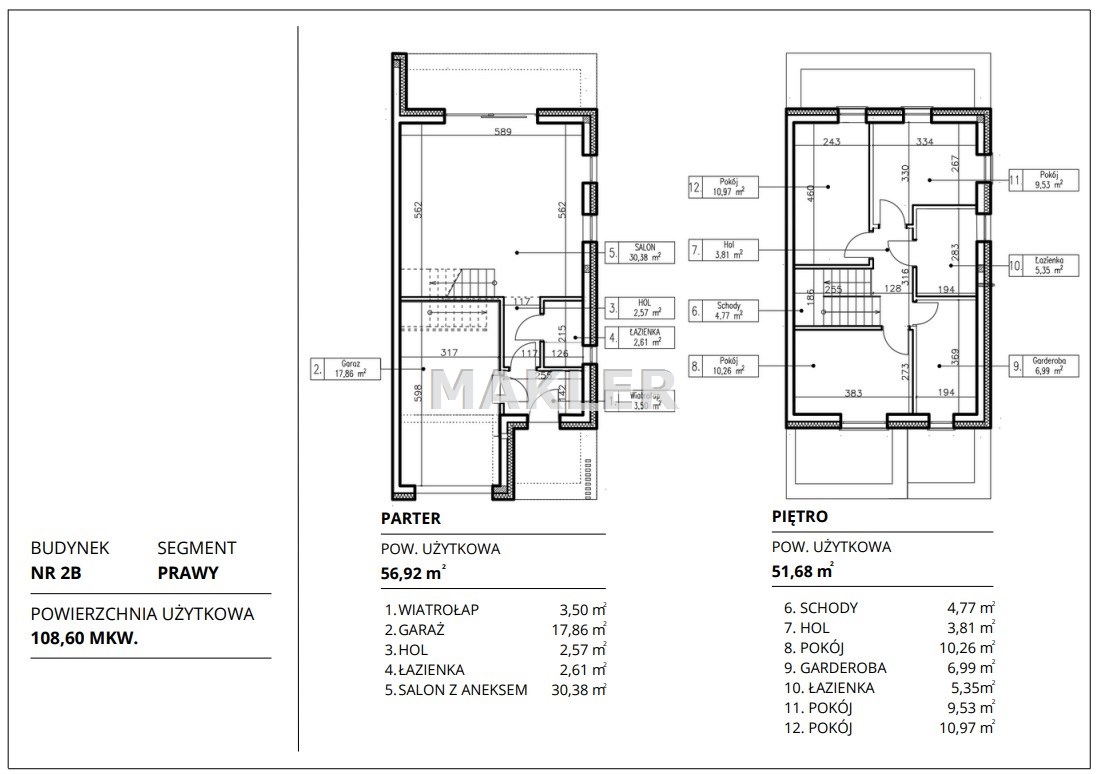
STANDARD WYKOŃCZENIA:
Przy tworzeniu Osiedla priorytetem stał się wysoki standard i nowoczesna architektura. Pragniemy stworzyć Osiedle, które nie będzie tylko miejscem zamieszkania, ale także stylem życia. Ucieknij z zatłoczonego i zakurzonego miasta i zamieszkaj między lasem a Kanałem Noteckim. Ciesz się zieloną okolicą, świeżym powietrzem jednocześnie nie rezygnując z bliskości miasta i wszystkich udogodnień potrzebnych na co dzień. W cenie mieszkania o podobnym metrażu możesz mieć swój własny, nowoczesny i energooszczędny dom na działce w rozmiarze między około 400 a 800 m2 w pięknej lokalizacji.
Technologia budowy
Już na wstępie nasze domy w zabudowie bliźniaczej wyróżnia usadowienie na płycie fundamentowej zamiast powszechnie wykonywanych ław fundamentowych. Zapewnia ona lepszą nośność, pozwala lepiej zabezpieczyć budynek przed nierównym osiadaniem a także znacznie wpływa na trwałość konstrukcji i energooszczędność budynku przepuszczając mniej ciepła na zewnątrz. Grubość płyty to 25 cm a wykonana została w technologii Agilia Fibro.
Domy wykonane są w technologii murowanej z bloczków silikatowych o grubości 24 cm oraz warstwy termoizolacji ze styropianu o grubości 20 cm, od wewnątrz ściany zostały wykończone tynkiem gipsowym. Bliźniaki oddzielają osobne ściany z dylatacją, co wpływa na lepszą akustykę i komfort niż w domach w zabudowie bezpośrednio łączonej lub dzielącej wspólną ścianę.
Ściany wewnętrzne działowe Twojego domu są murowane z bloczków gazobetonowych, wykończone tynkiem gipsowym. Możesz być pewny, że ściany z bloczków gazobetonowych będą trwałe i wytrzymałe przez wiele lat.
Do konstrukcji Twojego domu wybraliśmy zastosowanie stropu filigran. Strop filigran charakteryzuje się dużą wytrzymałością, dzięki czemu może wytrzymać większe obciążenia niż popularnie stosowana teriva. Uginanie się pojedynczych elementów stropu powoduje występowanie widocznych zarysowań na styku ścian nośnych ze stropem. W związku z tym, że teriva ma więcej mniejszych elementów takich miejsc jest o wiele więcej co powoduje wzrost prawdopodobieństwa ich wystąpienia. Dlatego zdecydowaliśmy się na strop filigran.
Ogrzewanie domu
Dom ogrzewany jest gazem z sieci. Wszystkie budynki w standardzie wyposażone są w nowoczesne, ekologiczne w pełni zautomatyzowane kotły gazowe marki Saunier Duval Isotwin Condens 24/30, dwufunkcyjne, które w połączeniu z ogrzewaniem podłogowym pozwalają na uzyskanie wysokiej sprawności energetycznej przy jednoczesnym dbaniu o aspekt ekonomiczny.
Na dachu Twojego domu zamontowana jest instalacja fotowoltaiczna o mocy 5-6 kW. Dzięki panelom słonecznym możesz produkować własną energię elektryczną, co pozwoli Ci zmniejszyć rachunki za prąd. Moc ta dobrana jest według obliczeń i w zupełności wystarczy na zapewnienie odpowiedniej ilości prądu potrzebnego do normalnego użytkowania.
System wentylacji
Dodatkowo każdy dom wyposażony jest w system wentylacji mechanicznej czyli rekuperację. Rekuperacja w domu to nie tylko nowoczesne rozwiązanie i odzysk ciepłego powietrza, ale także ogromna korzyść dla Twojego komfortu i zdrowia. Dzięki systemowi rekuperacji możesz cieszyć się świeżym i czystym powietrzem w swoim domu, bez konieczności otwierania okien. Dodatkowo, rekuperacja pomaga w utrzymaniu odpowiedniej wilgotności powietrza oraz eliminuje alergeny i zanieczyszczenia, co korzystnie wpływa na Twoje zdrowie i samopoczucie.
Stolarka okienna
Wybór stolarki okiennej to trzyszybowe okna o profilu 5-cio komorowym w kolorze antracyt od zewnątrz i białe wewnątrz. Wszystkie okna wyposażone zostały w rolety zewnętrzne w kolorze stolarki przygotowane do ewentualnego sterowania zdalnego. Oprócz tego każde okno w standardzie wykończone jest parapetem zewnętrznym jak i wewnętrznym. Drzwi zewnętrzne są ocieplone z wkładką antywłamaniową, do tego w standardzie brama garażowa PCV segmentowa z otworami wentylacyjnymi sterowana na pilota.
Podjazd
Podjazd do Twojego domu wykonany jest w całości z kostki brukowej w kolorze współgrającym z nowoczesnym charakterem domu. Natomiast taras (rozmiar 11-12 m2) wykonany będzie z płyt tarasowych, dzięki temu będzie wyglądał elegancko i wpisze się w styl Twojego domu.
W standardzie nieruchomości jest również woda z sieci oraz bezodpływowy zbiornik na nieczystości ciekłe.
Zadbaliśmy również o zagospodarowanie ogródka tak, byś wprowadzając się już mógł cieszyć się zielenią za oknem. W standardzie jest trawa i nasadzenia a wszystko to ogrodzone panelami ocynkowanymi wysokości 120 cm.
Systemy i udogodnienia
Przygotowaliśmy również instalacje pod alarm, 4 kamery zewnętrzne, klimatyzację na parterze oraz pod rolety zewnętrzne. W każdym pokoju znajduje się instalacja sieciowa i telewizyjna plus antena na dachu pod telewizję naziemną i satelitarną.
Twój dom wyposażyliśmy również we włączniki i gniazdka firmy Legrand, które cechuje wysoka jakość, innowacyjność i design. Produkty Legrand są nie tylko funkcjonalne, ale także estetyczne, co sprawia, że doskonale wpasowują się w różne style wnętrz, od klasycznych po nowoczesne. Dodatkowo, włączniki i gniazdka Legrand są projektowane z myślą o bezpieczeństwie użytkowników, spełniając najwyższe standardy jakości i normy bezpieczeństwa.
Kolejnym udogodnieniem jakie wybraliśmy ze względu na jakość jest domofon firmy Hikvision. To zaawansowane rozwiązanie do monitorowania i kontroli dostępu do budynków. Dzięki wysokiej jakości kamery i systemowi audio, domofon Hikvision umożliwia komunikację wideo i głosową z osobami stojącymi przed drzwiami. Dodatkowo, domofon ten może być zintegrowany z systemami monitoringu, co pozwala na pełną kontrolę nad bezpieczeństwem wokół domu.
W obu łazienkach wykonaliśmy konstrukcję do zabudowy lekkiej Tece.
Zadbaliśmy również o oświetlenie zewnętrzne budynku. Nowoczesne, energooszczędne oraz w pełni dopasowane pod względem wizualnym do elewacji budynku zapewni dogodny dostęp po zmroku zarówno od frontu budynku jak i tarasu.
ZAPRASZAM NA PREZENTACJĘ!!



