Nowa Wieś Wielka, Brzoza

Dom na sprzedaż

Opis nieruchomości

Zapraszamy Państwa do zapoznania się z ofertą wyjątkowego osiedla "Brzozowy Zakątek" w miejscowości Brzoza pod Bydgoszczą – miejsca, które łączy nowoczesność, komfort i spokój życia w otoczeniu natury.
To kameralne osiedle zostało stworzone z myślą o rodzinach, które poszukują wygody i bezpieczeństwa, jednocześnie ceniąc sobie bliskość miasta oraz kontakt z przyrodą.

Jeśli chcesz zmienić ciasne mieszkanie w szarym bloku a obawiasz się obowiązków i kosztów związanych z utrzymaniem domu – to idealna propozycja!

BRZOZOWY ZAKĄTEK to połączenie przestronnych wnętrz w otoczeniu lasu oraz niewymagające dużej obsługi nieruchomości!!!

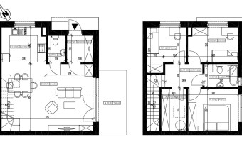
Przedmiotem oferty jest mieszkanie o łącznej powierzchni 87,78m2 podzielonej na 2 piętra. Lokal 7A położony na działce o pow. 145m2

PARTER: 
- przedsionek 3,42m2
- WC 2,27m2
- salon 28,55m2
- kuchnia 8,02m2
- taras 9m2

PIĘTRO:
- korytarz 4,37m2
- pokój 7,72m2
- pokój 8,63m2
- pokój 3,98m2
- łazienka 10,7m2
- garderoba 5,26m2

Do nieruchomości przylega ogród oraz 2 miejsca parkingowe na terenie posesji do wyłącznego korzystania!!!!

Lokal w stanie deweloperskim obejmującym:
- pompę ciepła
- ogrzewanie podłogowe
- taras
- instalacje elektryczne
- instalacje wod-kan

Istnieje możliwość skorzystania z pakietu PREMIUM obejmującego rozbudowę instalacji wod-kan oraz elektrycznej, rolety zewnętrzne, żaluzje fasadowe, fotowoltaikę, klimatyzację, schody wewnętrzne firmy Chrapkowski, płytki na tarasie, zadaszenie tarasu, zadaszenie miejsc parkingowych, elektrykę bram. 

Kilka słów o mieszkaniu:
Bardzo funkcjonalny rozkład pomieszczeń, który wpływa na codzienną wygodę każdego z domowników. Duże i jasne salony połączone z  kuchnią stanowią doskonałą przestrzeń do wspólnego spędzania czasu całej rodziny. Piętro to pokoje dla dzieci, gabinet lub sypialnie rodziców. Strefa na piętrze daje prywatność i intymność co istotnie wpływa na komfort życia.



Kilka słów o lokalizacji

Brzoza to dynamicznie rozwijająca się miejscowość, która oferuje mieszkańcom wszystkie niezbędne udogodnienia. Na miejscu znajdują się:

*Sklepy, apteki i punkty usługowe, które zapewniają codzienne zakupy bez konieczności wyjazdu do miasta,

* Szkoła podstawowa i przedszkola, znajdują się w pobliżu naszego osiedla, co znacznie ułatwia życie rodzinom z dziećmi.

* Ośrodki zdrowia i gabinety lekarskie, które zapewniają szybki dostęp do opieki medycznej,

* Komunikacja miejska – wygodne połączenia autobusowe i kolejowe z Bydgoszczą sprawiają, że bez problemu dotrzesz do pracy, szkoły czy centrum handlowego,

* Tereny rekreacyjne i leśne – Brzoza otoczona jest pięknymi lasami, które stanowią idealne miejsce na spacery, bieganie czy wycieczki rowerowe.


Osiedle "Brzozowy Zakątek " to idealne miejsce dla osób ceniących sobie szybki dojazd do Bydgoszczy. Dzięki bliskości głównych dróg, do centrum miasta dotrzesz w zaledwie 15 minut samochodem. To idealne rozwiązanie dla tych, którzy pracują w mieście, ale chcą mieszkać w spokojniejszej okolicy, z dala od zgiełku i hałasu.

Zapraszam serdecznie na prezentację

„Niniejsza oferta ma charakter informacyjny i nie stanowi oferty handlowej w rozumieniu art. 66 §1 Kodeksu Cywilnego. Zdjęcia oraz wizualizacje mogą nieznacznie odbiegać od stanu rzeczywistego. Makler Nieruchomości s.c. dokłada wszelkich starań, aby informacje zawarte w ogłoszeniu były aktualne i rzetelne.”

 

Nota prawna

Opis oferty zawarty na stronie internetowej sporządzany jest na podstawie oględzin nieruchomości oraz informacji uzyskanych od właściciela, może podlegać aktualizacji i nie stanowi oferty określonej w art. 66 i następnych K.C.

Szczegóły oferty

Symbol oferty MAK-DS-29429
Powierzchnia 87,80 m²
Powierzchnia użytkowa 87,80 m²
Powierzchnia działki 180 m²
Liczba pokoi 4
Rodzaj domu bliźniak
Standard
Okna nowe PCV
Instalacje nowe
Rok budowy 2025
Otoczenie las
Ogrzewanie pompa ciepła

Pomieszczenia

Podłogi pokoi wylewka
Rodzaj kuchni aneks kuchenny - połączony z salonem
Liczba łazienek 1
Liczba WC 2
Liczba przedpokoi 2

Lokalizacja

Kalkulator kredytowy

PLN
%
Wysokość raty

Kalkulator kosztów

PLN
PLN
PLN
PLN
PLN
PLN
%
PLN
Podatek od czynności cywilno-prawnych
Taksa notarialna (opłata notarialna)
VAT od taksy notarialnej (opłaty notarialnej)
Wniosek do WKW
VAT od wniosku do WKW
Prowizja agencji nieruchomości
VAT od prowizji agencji nieruchomości
Wypisy aktu notarialnego - około
RAZEM (cena + opłaty)

Podobne oferty

nowa oferta
dom na sprzedaż - Nowa Wieś Wielka, Brzoza

dom na sprzedaż

Nowa Wieś Wielka, Brzoza
4 pokoje 87,78 m2 6 254,27 zł/m2
nowa oferta
dom na sprzedaż - Nowa Wieś Wielka, Brzoza

dom na sprzedaż

Nowa Wieś Wielka, Brzoza
4 pokoje 87,78 m2 6 254,27 zł/m2
nowa oferta
dom na sprzedaż - Nowa Wieś Wielka, Brzoza

dom na sprzedaż

Nowa Wieś Wielka, Brzoza
4 pokoje 87,80 m2 6 252,85 zł/m2
nowa oferta
dom na sprzedaż - Nowa Wieś Wielka, Brzoza

dom na sprzedaż

Nowa Wieś Wielka, Brzoza
4 pokoje 87,00 m2 6 310,34 zł/m2

Napisz do nas

Proszę wypełnić to pole
Proszę wypełnić to pole
Proszę wypełnić to pole
Proszę wypełnić to pole
Trwa wysyłanie...

Ta strona wykorzystuje pliki cookies w celach statystycznych oraz w celu dostosowania naszych serwisów do indywidualnych potrzeb klientów. Zmiany ustawień dotyczących plików cookie można dokonać w dowolnej chwili modyfikując ustawienia przeglądarki. Korzystanie z tej strony bez zmian ustawień dotyczących cookies oznacza, że będą one zapisane w pamięci urządzenia.

rozumiem