Nowa Wieś Wielka, Brzoza

Dom na sprzedaż

Opis nieruchomości

Zapraszamy Państwa do zapoznania się z ofertą wyjątkowego osiedla "Brzozowy Zakątek" w miejscowości Brzoza pod Bydgoszczą – miejsca, które łączy nowoczesność, komfort i spokój życia w otoczeniu natury.

To kameralne osiedle zostało stworzone z myślą o rodzinach, które poszukują wygody i bezpieczeństwa, jednocześnie ceniąc sobie bliskość miasta oraz kontakt z przyrodą.

Jeśli chcesz zmienić ciasne mieszkanie w szarym bloku a obawiasz się obowiązków i kosztów związanych z utrzymaniem domu – to idealna propozycja!

BRZOZOWY ZAKĄTEK to połączenie przestronnych wnętrz w otoczeniu lasu oraz niewymagające dużej obsługi nieruchomości!!!

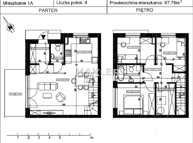
Przedmiotem oferty jest mieszkanie o łącznej powierzchni 87,78m2 podzielonej na 2 piętra.

PARTER: 
- przedsionek 3,42m2
- WC 2,27m2
- salon 28,55m2
- kuchnia 8,02m2
- taras 9m2

PIĘTRO:
- korytarz 4,37m2
- pokój 7,72m2
- pokój 8,63m2
- pokój 3,98m2
- łazienka 10,7m2
- garderoba 5,26m2


Do nieruchomości przylega ogród o pow.285m2 oraz 2 miejsca parkingowe na terenie posesji do wyłącznego korzystania!!!!

Lokal w stanie deweloperskim obejmującym:
- pompę ciepła
- ogrzewanie podłogowe
- taras
- instalacje elektryczne
- instalacje wod-kan

Istnieje możliwość skorzystania z pakietu PREMIUM obejmującego rozbudowę instalacji wod-kan oraz elektrycznej, rolety zewnętrzne, żaluzje fasadowe, fotowoltaikę, klimatyzację, schody wewnętrzne firmy Chrapkowski, płytki na tarasie, zadaszenie tarasu, zadaszenie miejsc parkingowych, elektrykę bram. 

Kilka słów o mieszkaniu:
Bardzo funkcjonalny rozkład pomieszczeń, który wpływa na codzienną wygodę każdego z domowników. Duże i jasne salony połączone z  kuchnią stanowią doskonałą przestrzeń do wspólnego spędzania czasu całej rodziny. Piętro to pokoje dla dzieci, gabinet lub sypialnie rodziców. Strefa na piętrze daje prywatność i intymność co istotnie wpływa na komfort życia.



Kilka słów o lokalizacji


Brzoza to dynamicznie rozwijająca się miejscowość, która oferuje mieszkańcom wszystkie niezbędne udogodnienia. Na miejscu znajdują się:

*Sklepy, apteki i punkty usługowe, które zapewniają codzienne zakupy bez konieczności wyjazdu do miasta,

* Szkoła podstawowa i przedszkola, znajdują się w pobliżu naszego osiedla, co znacznie ułatwia życie rodzinom z dziećmi.

* Ośrodki zdrowia i gabinety lekarskie, które zapewniają szybki dostęp do opieki medycznej,

* Komunikacja miejska – wygodne połączenia autobusowe i kolejowe z Bydgoszczą sprawiają, że bez problemu dotrzesz do pracy, szkoły czy centrum handlowego,

* Tereny rekreacyjne i leśne – Brzoza otoczona jest pięknymi lasami, które stanowią idealne miejsce na spacery, bieganie czy wycieczki rowerowe.



Osiedle "Brzozowy Zakątek " to idealne miejsce dla osób ceniących sobie szybki dojazd do Bydgoszczy. Dzięki bliskości głównych dróg, do centrum miasta dotrzesz w zaledwie 15 minut samochodem. To idealne rozwiązanie dla tych, którzy pracują w mieście, ale chcą mieszkać w spokojniejszej okolicy, z dala od zgiełku i hałasu.

„Niniejsza oferta ma charakter informacyjny i nie stanowi oferty handlowej w rozumieniu art. 66 §1 Kodeksu Cywilnego. Zdjęcia oraz wizualizacje mogą nieznacznie odbiegać od stanu rzeczywistego. Makler Nieruchomości s.c. dokłada wszelkich starań, aby informacje zawarte w ogłoszeniu były aktualne i rzetelne.”

Zapraszam serdecznie na prezentację

Nota prawna

Opis oferty zawarty na stronie internetowej sporządzany jest na podstawie oględzin nieruchomości oraz informacji uzyskanych od właściciela, może podlegać aktualizacji i nie stanowi oferty określonej w art. 66 i następnych K.C.

Szczegóły oferty

Symbol oferty MAK-DS-27901
Powierzchnia 87,80 m²
Powierzchnia użytkowa 87,00 m²
Powierzchnia działki 285 m²
Liczba pokoi 4
Rodzaj domu bliźniak
Standard
Okna nowe PCV
Instalacje nowe
Stan budynku do wykończenia
Ogrodzenie działki ogrodzona
Rok budowy 2025
Ogrzewanie pompa ciepła
Tarasy taras

Pomieszczenia

Podłogi pokoi wylewka
Powierzchnia kuchni 8,02 m2
Liczba łazienek 1
Liczba WC 2
Liczba przedpokoi 2

Lokalizacja

Kalkulator kredytowy

PLN
%
Wysokość raty

Kalkulator kosztów

PLN
PLN
PLN
PLN
PLN
PLN
%
PLN
Podatek od czynności cywilno-prawnych
Taksa notarialna (opłata notarialna)
VAT od taksy notarialnej (opłaty notarialnej)
Wniosek do WKW
VAT od wniosku do WKW
Prowizja agencji nieruchomości
VAT od prowizji agencji nieruchomości
Wypisy aktu notarialnego - około
RAZEM (cena + opłaty)

Podobne oferty

bez prowizji
dom na sprzedaż - Nowa Wieś Wielka, Brzoza

dom na sprzedaż

Nowa Wieś Wielka, Brzoza
4 pokoje 87,78 m2 5 684,67 zł/m2
nowa oferta
dom na sprzedaż - Nowa Wieś Wielka, Brzoza

dom na sprzedaż

Nowa Wieś Wielka, Brzoza
7 pokoi 190,00 m2 2 994,74 zł/m2
bez prowizji
dom na sprzedaż - Nowa Wieś Wielka, Brzoza

dom na sprzedaż

Nowa Wieś Wielka, Brzoza
4 pokoje 87,78 m2 5 684,67 zł/m2
nowa oferta
dom na sprzedaż - Nowa Wieś Wielka, Brzoza

dom na sprzedaż

Nowa Wieś Wielka, Brzoza
4 pokoje 87,78 m2 5 684,67 zł/m2

Napisz do nas

Proszę wypełnić to pole
Proszę wypełnić to pole
Proszę wypełnić to pole
Proszę wypełnić to pole
Trwa wysyłanie...

Ta strona wykorzystuje pliki cookies w celach statystycznych oraz w celu dostosowania naszych serwisów do indywidualnych potrzeb klientów. Zmiany ustawień dotyczących plików cookie można dokonać w dowolnej chwili modyfikując ustawienia przeglądarki. Korzystanie z tej strony bez zmian ustawień dotyczących cookies oznacza, że będą one zapisane w pamięci urządzenia.

rozumiem