Bydgoszcz, Bartodzieje

Dom na sprzedaż

Opis nieruchomości

Biuro Makler poleca: 

Szukasz NOWEGO DEVELOPERSKIEGO domu/mieszkania?
Zależy Ci na cichej okolicy i bliskości terenów zielonych?
Potrzebujesz bezpieczeństwa w postaci zamkniętego osiedla?

Jeśli TAK to ta oferta jest właśnie dla Ciebie !!


Kupujący nie płaci podatku PCC!! oraz prowizji do biura!!



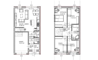
Przedstawiamy dom szeregowy 5 pokojowy 
o powierzchni 112 m2 z garażem w bryle budynku


Opis inwestycji:

Willa w zabudowie szeregowej na Bartodziejach w Bydgoszczy

Trzy domy w zabudowie szeregowej w nowoczesnej willi mieszkaniowej. W parterze zlokalizowana przestrzeń dzienna z salonem, garażem, toaletą i pomieszczeniem gospodarczym. Na piętrach wybudowano cztery sypialnie i łazienkę.
Jednocześnie aranżacja każdego piętra może być wykonana indywidualnie według wytycznych klientów. Projekt też doskonale również sprawdzi się jako siedziba firmy - atrakcyjna przestrzeń, sporo pomieszczeń oraz szybki dojazd z różnych kierunków miasta bez stania w korkach, to ogromne zalety tej inwestycji pod kątem również biznesowym. 

Lokalizacja

Doskonała lokalizacja inwestycji pozwala sprawnie dostać się do centrum miasta zarówno komunikacją miejską jak i samochodem oraz wyjechać we wszystkich kierunkach. Szybki dostęp do ulic Wyszyńskiego, Kamiennej, Skłodowskiej-Curie, Powstańców Wielkopolskich czy Fordońskiej sprawią, że mieszkańcy mogą wrócić do domu na wiele sposobów bez konieczności stania w korkach. Oprócz doskonałego skomunikowania Bartodzieje, uznawane za jedną z najlepszych dzielnic Bydgoszczy, oferują pełną osiedlową infrastrukturę – szkoły podstawowe i średnie, mnogość sklepów i punktów usługowych, przestrzenie parkowe i rekreacyjne.  Wysokość budynku i otwarta przestrzeń to cecha charakterystyczna nowej inwestycji na Bartodziejach. Południowa i zachodnia strona zapewniają otwarty widok, dzięki czemu mieszkania są doskonale naświetlone.

Zapraszam na prezentację!!

Nota prawna

Opis oferty zawarty na stronie internetowej sporządzany jest na podstawie oględzin nieruchomości oraz informacji uzyskanych od właściciela, może podlegać aktualizacji i nie stanowi oferty określonej w art. 66 i następnych K.C.

Szczegóły oferty

Symbol oferty MAK-DS-27419
Powierzchnia 113,00 m²
Powierzchnia działki 450 m²
Liczba pokoi 5
Rodzaj domu szeregowiec
Standard
Rok budowy 2025
Ogrzewanie miejskie

Lokalizacja

Kalkulator kredytowy

PLN
%
Wysokość raty

Kalkulator kosztów

PLN
PLN
PLN
PLN
PLN
PLN
%
PLN
Podatek od czynności cywilno-prawnych
Taksa notarialna (opłata notarialna)
VAT od taksy notarialnej (opłaty notarialnej)
Wniosek do WKW
VAT od wniosku do WKW
Prowizja agencji nieruchomości
VAT od prowizji agencji nieruchomości
Wypisy aktu notarialnego - około
RAZEM (cena + opłaty)

Podobne oferty

dom na sprzedaż - Bydgoszcz, Górzyskowo

dom na sprzedaż

Bydgoszcz, Górzyskowo
5 pokoi 157,00 m2 6 050,96 zł/m2
rezerwacja
dom na sprzedaż - Bydgoszcz, Bartodzieje

dom na sprzedaż

Bydgoszcz, Bartodzieje
5 pokoi 164,00 m2 5 670,73 zł/m2
oferta specjalna
dom na sprzedaż - Bydgoszcz, Miedzyń

dom na sprzedaż

Bydgoszcz, Miedzyń
6 pokoi 300,00 m2 3 233,33 zł/m2
nowa oferta
dom na sprzedaż - Bydgoszcz, Bartodzieje

dom na sprzedaż

Bydgoszcz, Bartodzieje
4 pokoje 121,00 m2 11 157,02 zł/m2

Napisz do nas

Proszę wypełnić to pole
Proszę wypełnić to pole
Proszę wypełnić to pole
Proszę wypełnić to pole
Trwa wysyłanie...

Ta strona wykorzystuje pliki cookies w celach statystycznych oraz w celu dostosowania naszych serwisów do indywidualnych potrzeb klientów. Zmiany ustawień dotyczących plików cookie można dokonać w dowolnej chwili modyfikując ustawienia przeglądarki. Korzystanie z tej strony bez zmian ustawień dotyczących cookies oznacza, że będą one zapisane w pamięci urządzenia.

rozumiem